Nel caso di Hostal Ritoque, le preoccupazioni concettuali per la buona architettura a basso costo hanno coinciso con il punto di equilibrio tra i desideri del cliente e il suo budget. Come spesso accade in Cile, i desideri erano alti e il budget basso.
Mentre è normale per i non addetti al settore del settore non avere familiarità con i costi di costruzione, tutti desiderano che l’investimento della vita soddisfi tutte le loro aspettative. Quindi, per ridurre i costi e rispondere al contesto rurale, il progetto è iniziato selezionando tecnologie e manodopera locali.
In altre parole, gli architetti hanno contattato l’artigiano responsabile per la tipologia costruttiva della zona – semplici architetture di pino segato – e hanno creato un catalogo di tecniche costruttive basate sulle soluzioni locali più comuni, riducendo i costi di trasporto e i margini di profitto della costruzione.
Il secondo aspetto fondamentale consisteva nell’ottimizzare le dimensioni di lunghezza più comuni del legno: la misurazione ha definito la larghezza dei diversi volumi che compongono il progetto. Questa decisione di per sé non ha prodotto risparmi ma la regolazione degli spazi in moduli adatti alla maggior parte degli elementi costruttivi (2,4 m) sì.
Galleria
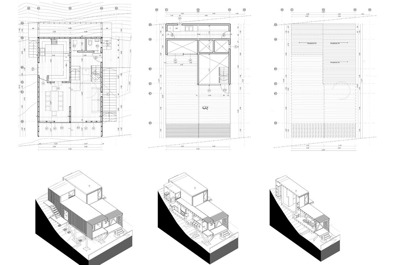
Hostal Ritoque, Playa de Ritoque, Quintero, Región de Valparaíso, Cile
Tipologia: ostello
Architetti: Alejandro Soffia e Gabriel Rudolphy
Strutture: José Manuel Morales e Gabriel Rudolphy
Impresa: Juan Tapia, Francisco Tapia e Diego Arenas
Committente: Diego Arenas e Dayenú Vencilla
Area: 183 mq
Budget: U$ 650/ mq
Completamento: 2014
