Galleria
\\STONED\dsgns\05_Prensa\Envío información\2.Febrero\PLANOS_PRESENTACION_ solanelles y cubil A3_cubil (1)
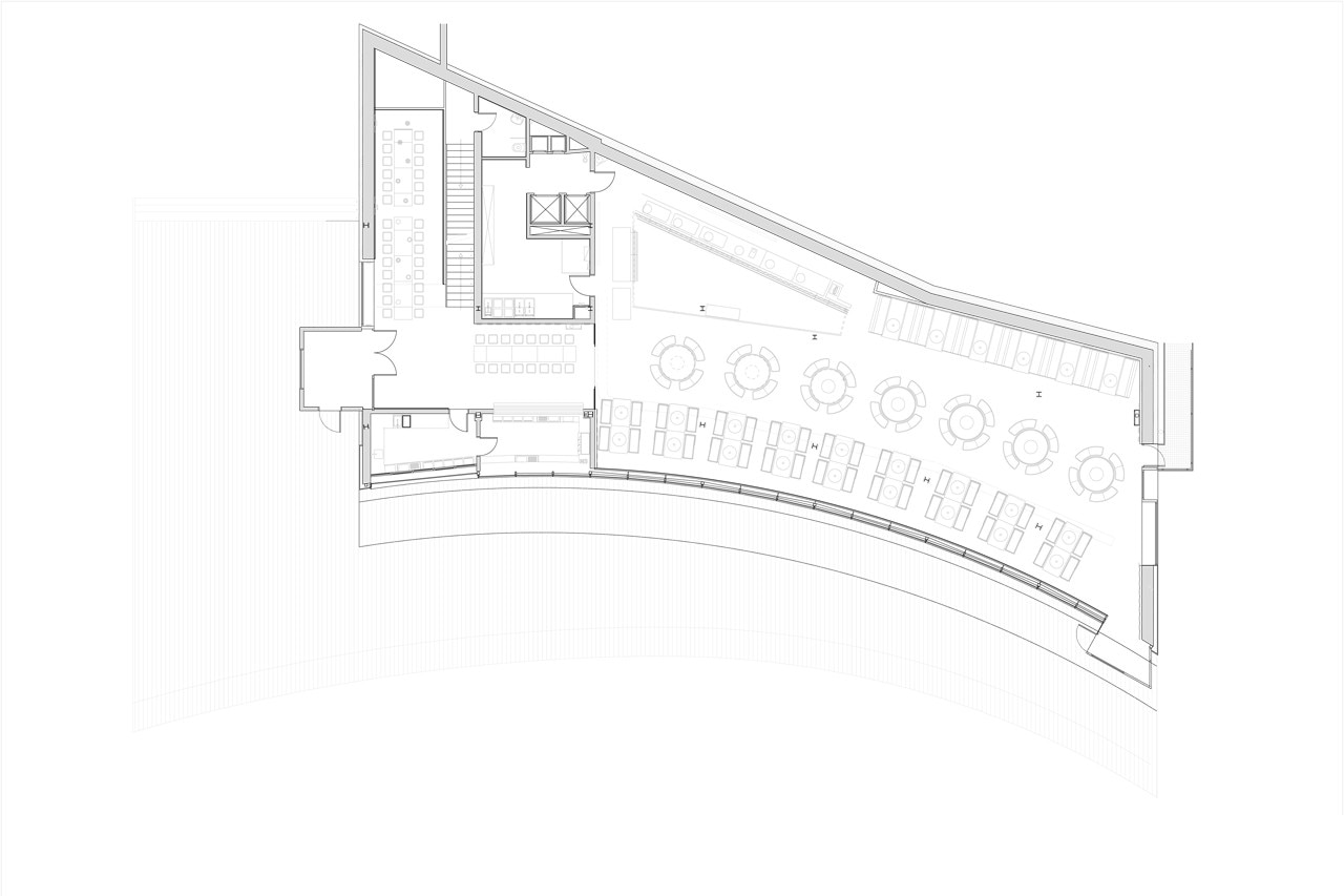
Stone Designs, Rstorante Cubil, Grandvalira, Andorra. Pianta
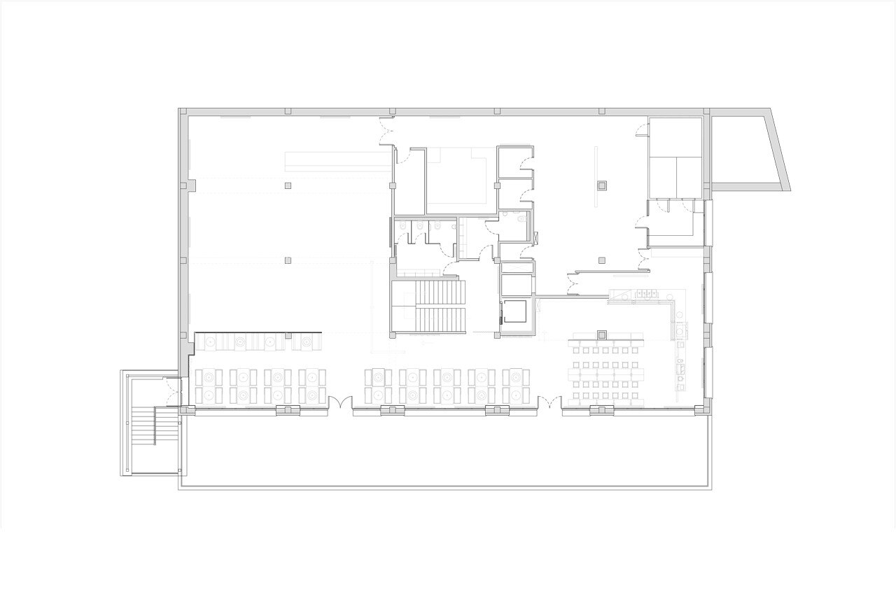
Ristoranti Cubil e Solanelles, Grandvalira, Andorra
Tipologia: ristoranti
Design: Stone Designs
Committente: Saetde
Area Ristorante Cubil: 245 sqm
Area Ristorante Solanelles: 443 sqm
Completamento: 2013
