Studio di progettazione: Arch. Elena Martucci
Nome del progetto: Cannaregio 5251
Luogo: Venezia, Italia
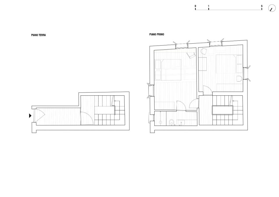
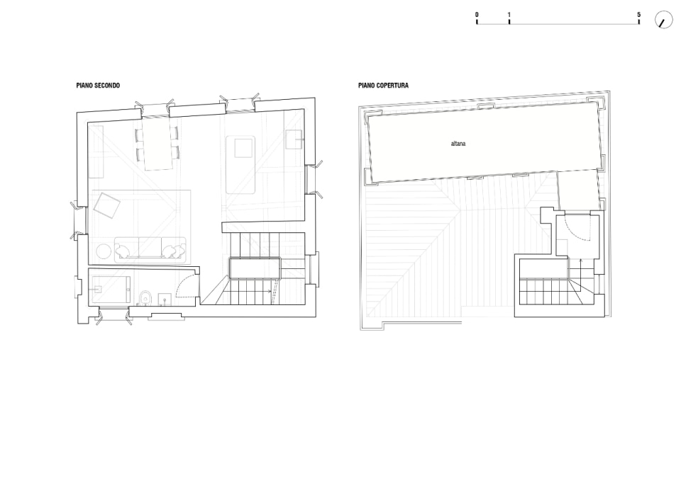
Questa piccola casa nel sestiere di Cannaregio, a Venezia, racconta la propria storia e quella del suo intorno, moltiplicando e reinterpretando i segni della città lagunare. Si tratta di una casa terracielo, una tipologia abitativa indipendente e sviluppata su più piani, tipica dei centri storici italiani. Il progetto di Elena Martucci ha rimosso le tracce delle precedenti ristrutturazioni per ricomporre i frammenti di un racconto unitario. Venezia si legge nei materiali: nel faggio rosato che riveste la scala, proveniente dall’Altopiano del Cansiglio; nella pietra d’Istria posata nel pavimento del bagno, la stessa impiegata per ponti, edifici e monumenti durante il periodo della Serenissima. La luce veneziana si ritrova sull’ottone brunito dell’isola in cucina, mentre la superficie di vetro colorato del tavolo da pranzo richiama l’acqua dei canali. Con il nuovo intervento, l’eliminazione dei controsoffitti rivela l’intreccio delle travi in legno, e l’assenza di intonaco su alcune pareti restituisce la trama originaria dei mattoni, riportando alla luce la materia autentica dell’edificio.
