Studio di progettazione: Architect Santiago Bertotti
Nome del progetto: Casa BP
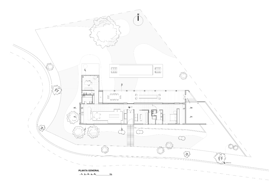
Luogo: Mendiolaza, Córdoba, Argentina
Dimensioni: 400 mq
Immersa nel paesaggio rurale argentino, a pochi chilometri a nord di Cordoba, Casa BP si sviluppa longitudinalmente seguendo la topografia del sito. È dal territorio stesso che nasce il concept del progetto, un volume compatto e chiuso verso la strada, che si apre progressivamente sul fronte opposto per accogliere il paesaggio. Tutto sembra dialogare con il contesto, dalle superfici intonacate con colori che richiamano la terra, alla struttura lignea del portico, fino alle pareti forate che man mano dissolvono il rapporto tra interno ed esterno: un'architettura che interpreta il paesaggio come parte integrante del progetto.
