In un quartiere di Milano caratterizzato un tempo, come molte zone della città, da attività produttive e laboratori artigianali, il paesaggio urbano è stato radicalmente trasformato da nuovi complessi residenziali e terziari. Qui, due fratelli hanno deciso di trasformare un piccolo opificio di famiglia in una dimora contemporanea, resistendo alle pressioni del “modello Milano” che avrebbe voluto sostituirlo con un condominio di nuova costruzione.
Siamo nel quartiere Rottole, a nord est della città, davanti alla cintura ferroviaria che collega la Stazione Centrale a quella di Lambrate. Attorno a essa, a partire dagli anni’30 – epoca in cui alla stazione Centrale “passante” di Piazza della Repubblica del 1864 venne sostituita dalla nuova stazione “di testa” di Ulisse Stacchini – erano nate infatti diverse piccole industrie, che proprio dalla vicinanza con la ferrovia traevano il loro vantaggio.
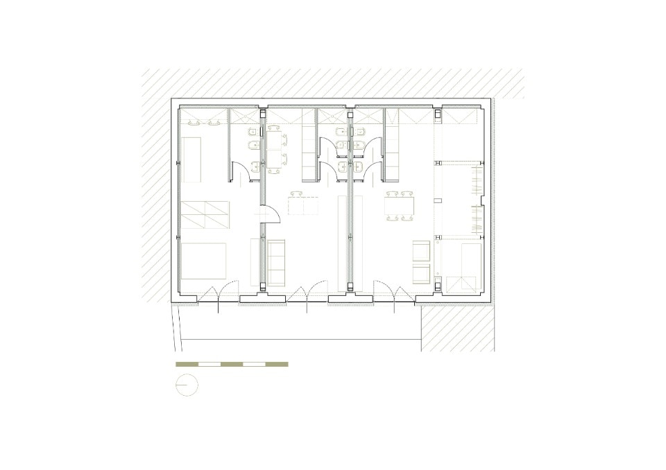
In questo progetto, la struttura originale del capannone, con una pianta rettangolare – tre campate principali e una mezza campata – è stata il punto di partenza per un intervento di riuso dell’edificio. Il carattere industriale del fabbricato, con le strutture in cemento armato a vista, i tamponamenti in mattoni pieni e i serramenti in ferro, è stato valorizzato e integrato alle nuove esigenze abitative.
L’intervento ha visto la divisione del capannone in due unità immobiliari distinte, ciascuna destinata a uno dei due fratelli. Prima di essere trasformato in abitazione, l’immobile è stato sottoposto a significativi lavori di adeguamento antisismico e di miglioramento dell’isolamento termico e acustico. “L’intento progettuale è stato quello di recuperare l’immobile esistente attraverso un intervento che ne salvaguardasse il carattere” – si legge nella relazione di progetto.
Recuperare un frammento del passato industriale di Milano in una logica di sostenibilità, quindi ma anche trasformare spazi obsoleti in luoghi di vita, conservando la memoria dei luoghi.
All’interno di ciascuna campata è stata inserita una “scatola” autonoma che si apre verso il cortile, coronata da un lucernario. Questi volumi contengono funzioni specifiche, come cucina e bagno, e integrano gli impianti e gli isolamenti necessari. Per enfatizzare la continuità del volume il bagno è stato chiuso con una parete leggera, sormontata da vetro privo di telaio, che permette di percepire il volume della fabbrica nella sua interezza.
Le finiture sono minimaliste e luminose, in contrasto con la pesantezza della parete verso il cortile, isolata esternamente e rivestita in intonaco cementizio nero non tinteggiato. Nuove portefinestre con serramenti in metallo completano la connessione visiva tra interno ed esterno, esaltando la relazione tra materiali e luce.
Il fratello maggiore – libero professionista – ha scelto l’unità più ampia, composta da due campate. Qui, la zona giorno si sviluppa in un unico spazio continuo, con la cucina schermata dal setto che la separa dal bagno. La zona notte, nell’altra campata, è suddivisa in due ambienti distinti da una cabina armadio centrale.
La sorella – collezionista d’arte – ha invece occupato l’unità più piccola, composta da una campata e mezza. In attesa di trasferirsi definitivamente, utilizza l’abitazione come pied-à-terre milanese. La campata principale ospita la zona giorno, mentre la mezza campata è stata adibita a una zona notte in dialogo con il resto dello spazio.
