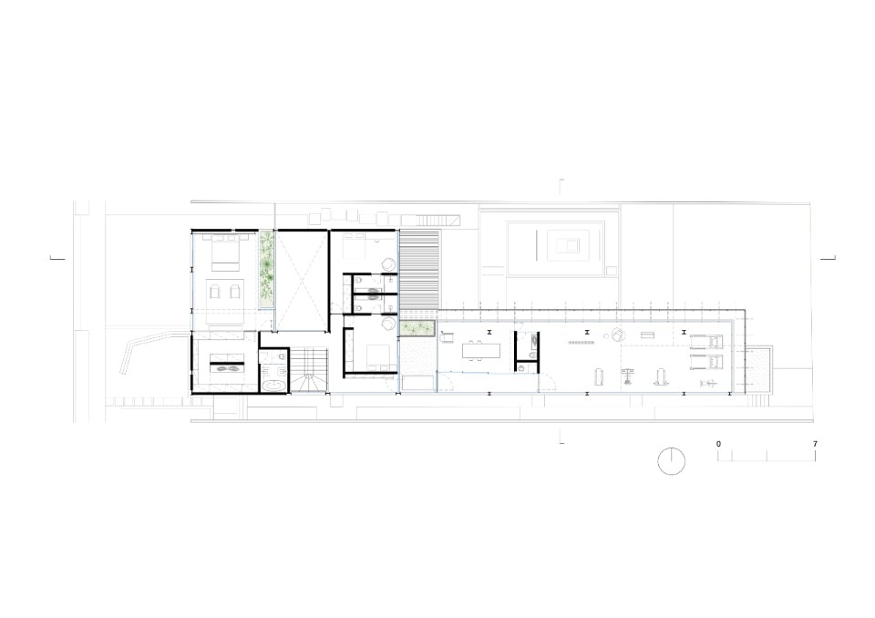
A Nova Lima, nella parte centro-meridionale del Brasile, Arquitetos Associados + Biri hanno progettato una casa che, come una penisola, si espande verso il giardino con piscina.
L’intervento è stato realizzato in due fasi, a causa dell’interruzione del processo esecutivo al tempo della pandemia e del contestuale cambio di proprietà. Il nuovo acquirente ha deciso di adeguare il progetto alle proprie esigenze, mantenendo tuttavia l’impianto originario della prima fase: un volume ad L, composto da un corpo a due piani, e da uno a un piano solo, ad esso perpendicolare, introverso sul fronte stradale e aperto invece al giardino con piscina; la zona giorno è al piano terra, gli ambienti privati invece al livello superiore.
La seconda fase ha previsto un incremento planivolumetrico del corpo ad un piano collocato a sud del lotto: se il piano terra resta il fulcro della vita comunitaria familiare, il piano superiore, ampliato, ospita ora oltre alle camere da letto un ufficio e una palestra con vista sul giardino.
L’impiego di una struttura puntiforme in acciaio per l’ampliamento ha consentito di realizzare uno spazio fluido e libero da partizioni, dove la luce si distribuisce generosamente da nord, filtrata dallo schermo di pannelli mobili a listelli metallici che interrompono la continuità della facciata in vetro. L’espansione della piscina, che lambisce una terrazza in legno adagiata sul terreno in pendenza, moltiplica gli spazi di relax all’aperto.
Un lessico di geometrie rigorose e di materiali naturali dichiaratamente esibiti conferisce alla costruzione un carattere robusto e minimale ma accogliente, grazie ai contrasti tra l’involucro strutturale in cemento e acciaio e le finiture interne di pareti e controsoffitti in legno dai toni caldi.
- Team di progetto fase 1:
- Eduardo França, Marcos Franchini; collaboratori:Amanda Castilho, João Pedro Pujoni Facury, José Henrique Paiva, Sofia Vasconcelos
- Team di progetto fase 2:
- Carlos Alberto Maciel, Marcos Franchini, Rafael Gil; collaboratori: Gabriella Sevilha, Jairo Câmara, Thomáz Marcatto
- Strutture:
- Y&D Engenharia (Maria de Fátima Duque, Marcos Aurélio Gonçalves)
- Paesaggio:
- Flávia D'Urso
- Interni:
- Nídia Duarte
