Nella lingua Yaghan, una delle più antiche tribù insediate nella zona meridionale della Terra del Fuoco, ormai quasi estinta, “anoka” significa “luna”. E dare questo nome ad un aparthotel, che accoglie gli ospiti in appartamenti dotati dei servizi di un albergo, suggerisce un’accoglienza intima ed evocativa in un territorio di straordinario valore naturalistico e antropologico.
Situato nella zona di Frutillar Bajo nella Regione di Lagos in Cile, di fronte al lago Llanquihue, l’edificio progettato da AM Arquitectura si trova in una zona di frangia tra l’espansione urbana e la collina, in un contesto ricco di un patrimonio architettonico dalla consolidata tipologia costruttiva e oggetto di interventi di recupero e valorizzazione.
L’opera, collocata in un lotto triangolare leggermente in pendenza, si conforma alla morfologia delle abitazioni tradizionali con un impianto rettilineo semplice e funzionale, copertura a falde e balconi.
Il principio cardine del progetto è stata la definizione di una relazione tra l’architettura e il paesaggio caratterizzato dalla presenza di vulcani e del lago: per garantire una vista privilegiata sul lago Llanquihue e sul vulcano Osorno da tutti gli appartamenti, l’edificio è stato sopraelevato su pilastri disposti a piramide rovesciata che consentono anche l’isolamento del fabbricato dal terreno.
La struttura è realizzata con tecnologia mista composta da pareti in legno con rinforzi metallici; per i rivestimenti esterni sono impiegati acciaio e legno, materiali predominanti nella zona, mentre negli interni il legno come materiale preferenziale conferisce un’aura calda e accogliente ai locali.
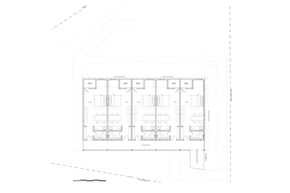
L’edificio, distribuito su due piani, ospita dieci appartamenti rivolti a nord che dispongono ciascuno di affacci privati su balconi e comprendono un soggiorno – pranzo con cucina, una camera da letto matrimoniale e servizi; gli appartamenti al secondo livello dispongono di mansarda abitabile che aumenta la spazialità dell’ambiente.
L’accesso avviene da sud, attraverso una galleria coperta raccordata ad una rampa che segue l’andamento del terreno e collega al primo livello e ad una scala che distribuisce al piano superiore; una gelosia in lamelle in legno verticali protegge lo spazio distributivo a sud lasciando filtrare la luce con vibranti giochi chiaroscurali durante le diverse ore del giorno.
- Progetto:
- Anoka Apart Hotel Boutique
- Progetto architettonico:
- AM Arquitectura
- Luogo:
- Frutillar, Cile
- Capo progetto:
- Rodrigo Araya Manzanares
- Collaboratore:
- Alexandra Walzer Kuncar
- Ingegnere strutturale:
- Sebastián Reyes Parancán
- Costruzione:
- Ruperto Pineda Cabello
- Progetto illuminotecnico:
- Katerina Jofré
