La casa progettata da EKAR Architects mette in questione la possibilità di creare una casa che attualizza il comfort delle tradizionali case thailandesi in un contesto contemporaneo. Le case del luogo sono tipicamente degli aggregati di piccole abitazioni, con un patio in mezzo che mette in connessione la vita delle diverse famiglie. Le abitazioni sono di solito rialzate come palafitte, creando uno spazio aperto sotto la casa.
Galleria
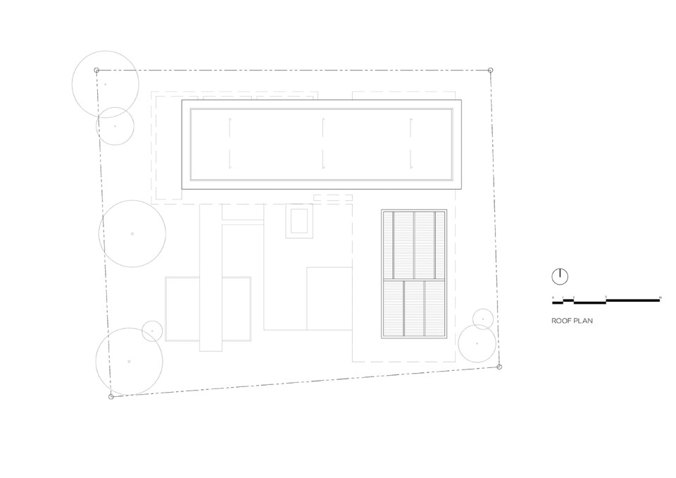
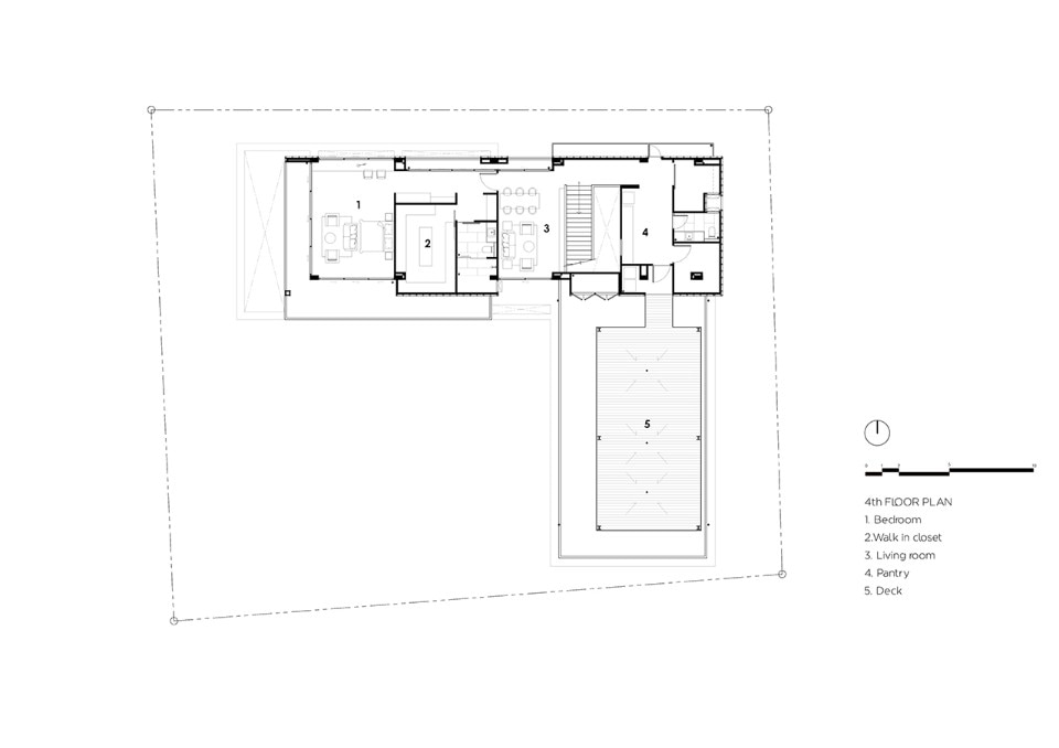
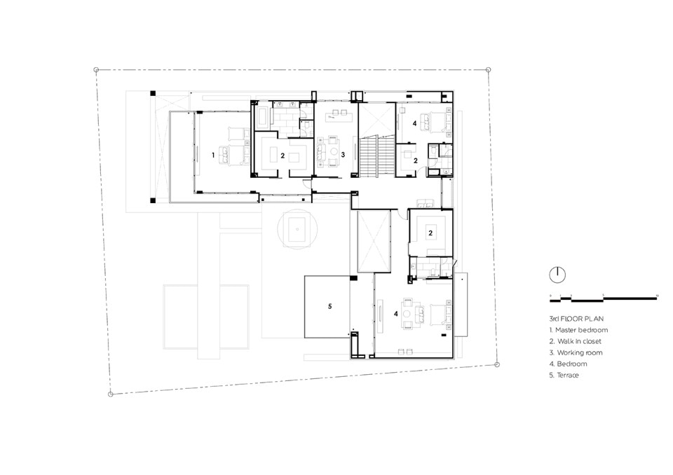
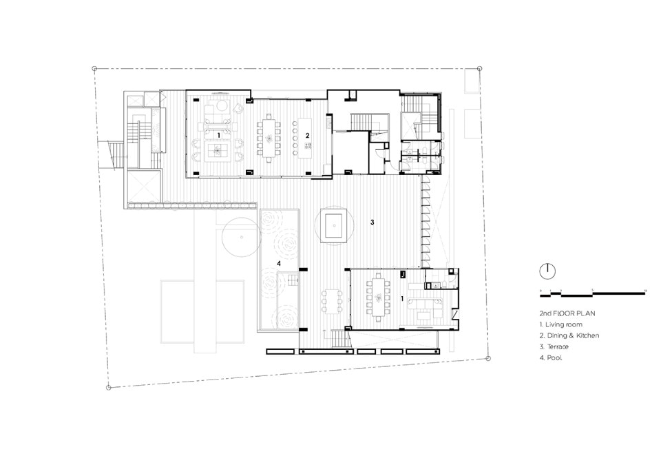
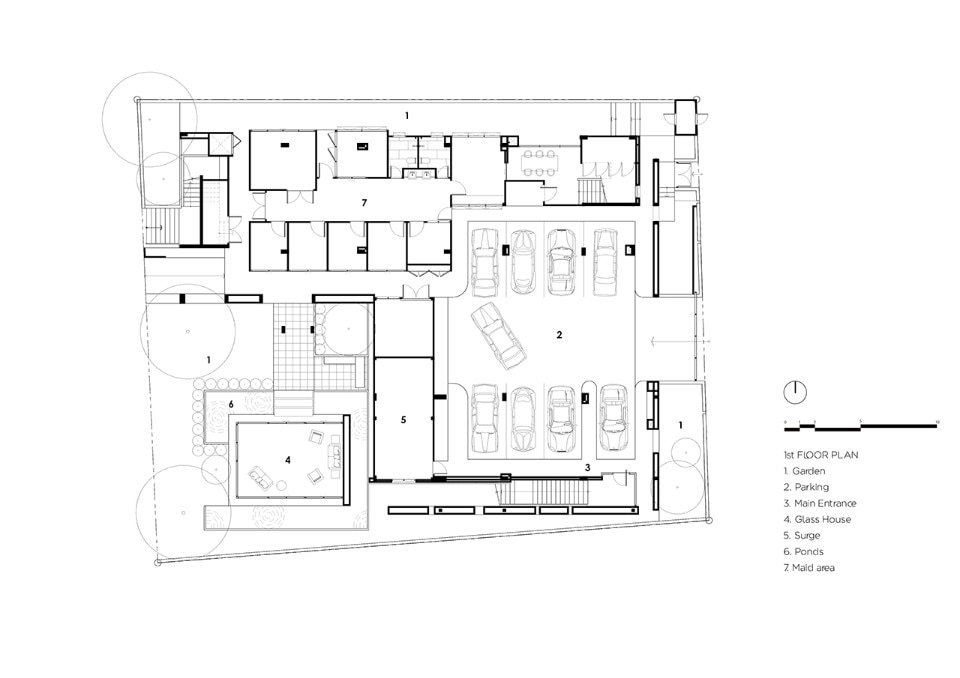
La residenza ha forma di L, con gli spazi residenziali elevati ai piani superiori; il piano terra è lasciato libero per il parcheggio di dieci macchine. Il muro tra la casa dei genitori e quella nuova viene eliminato e riempito con un nuovo grande giardino che sia affianca a quello esistente, in coerenza con la residenza esistente. Gli architetti hanno realizzato un’abitazione su quattro piani. Il secondo è destinato alla famiglia del cliente, il terzo alla futura famiglia di sua figlia, mentre il primo ospita gli spazi comuni e rappresenta il vero e proprio nodo centrale della casa. Dal grande patio è possibile guardare verso la piscina, il cortile sopraelevato, la cima dell’albero, piantato a livello del suolo, e la zona giorno delle diverse residenze.
- Progetto:
- Casa Re-Gen
- Luogo:
- Bangkok
- Tipologia:
- residenza
- Architetto:
- EKAR Architect
- Interni:
- Define Studio
- Paesaggio:
- Groundsplay Studio
- Strutture:
- Sommuek Apiraksa
- Area:
- 1.726 mq
- Completamento:
- 2017
