Galleria
C:\Users\ew239\Desktop\Oslo_skatehall_ew239.pdf
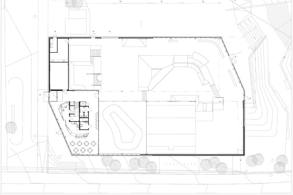
Dark Arkitekter AS, Oslo Skatehall, piano terra
C:\Users\ew239\Desktop\Oslo_skatehall_ew239.pdf
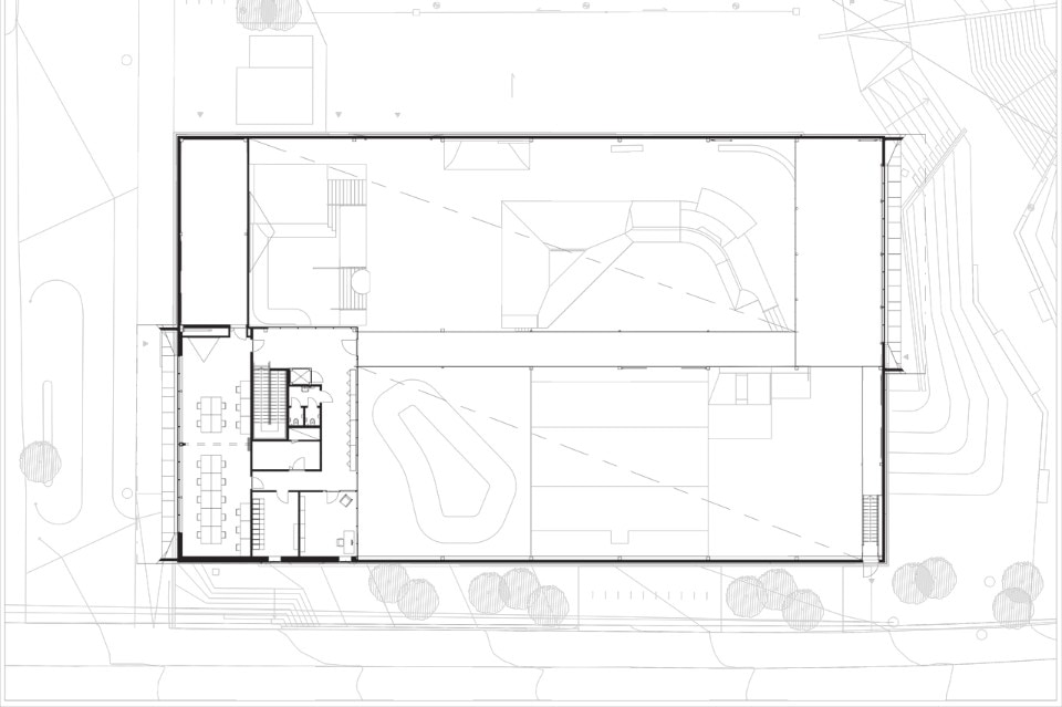
Dark Arkitekter AS, Oslo Skatehall, primo piano
C:\Users\ew239\Desktop\Oslo_skatehall_ew239.pdf
Dark Arkitekter AS, Oslo Skatehall, sezioni
C:\Users\ew239\Desktop\Oslo_skatehall_ew239.pdf
Dark Arkitekter AS, Oslo Skatehall, sezioni
Oslo Skatehall - Fasade sørvest - 1_200.pdf
Dark Arkitekter AS, Oslo Skatehall, prospetto
La principale area per lo skate si trova al piano inferiore, che presenta un soffitto alto che lascia ampio spazio alle rampe costruite su misura. Queste sono state progettate e realizzate congiuntamente da Glifberg+Lykke e IOU Ramps. Una caratteristica unica dell’Oslo Skatehall è la bowl sollevata, costruita di legno. Gli elementi strutturali hanno una forma organica a forma di fiore e possono essere osservati anche dal basso. Al piano superiore una galleria si estende per tutta la lunghezza della sala, permettendo agli spettatori una visione chiara dei movimenti degli skater sottostanti.
Oslo skatehall
Tipologia: centro sportivo
Architetto: Dark Arkitekter AS
Paesaggio: Rambøll
Rampe da skate interne: Glifberg+Lykke and IOU Ramps
Costruzione: Varden Entreprenør
Superficie: 2300 mq
Completamento: 2017
