Galleria
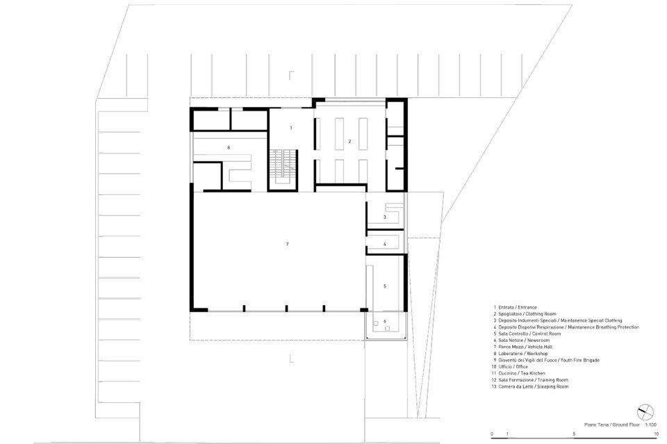
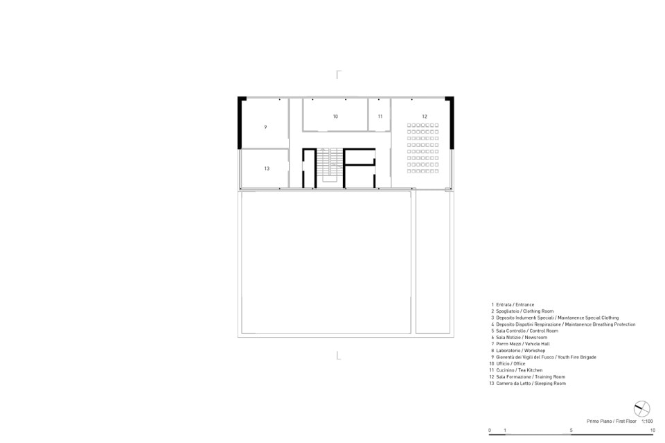
Il design compatto è correlato in termini di dimensioni e proporzioni alla piccola e frazionata zona residenziale a nord e ai grandi capannoni della zona industriale a sud. Attraverso tagli nel volume dell’edificio, sono definite aree protette, separate dalla zona di ingresso del veicolo. L’aspetto è uniforme e compatto. La struttura portante è in cemento armato e le finiture interne sono in tecnologie asciutte di modo che l’edificio possa essere molto flessibile anche per usi diversi.
Stazione dei pompieri a Campo Tures, Italia
Tipologia: stazione dei pompieri
Architetti: Pedevilla Architekten
Completamento: 2016
