Galleria
MPH Block, DPS Noida Expressway, Noida, India
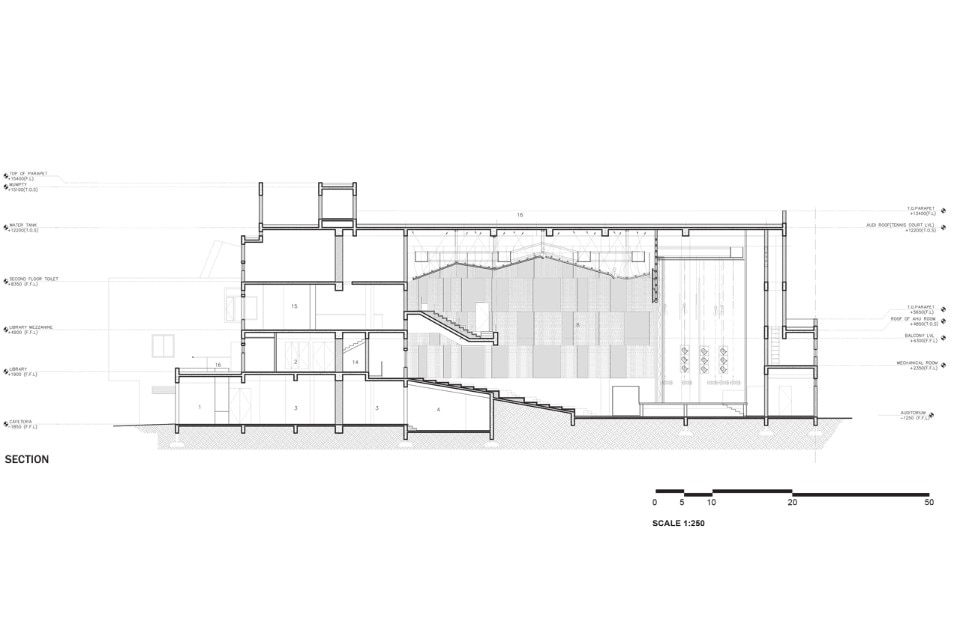
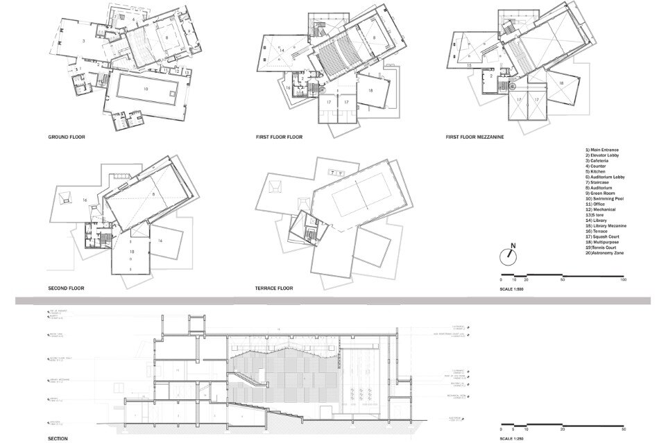
Tipologia: scuola e spazi polifunzionali
Architetti: R+D Studio
Team di progetto: Shikha Doogar, Shridhar Rao, Aditi Bhatia, Sanjoy Kumar Deb, Anshul Kapoor, Samiksha Khanna, Harshat Verma, Mudit Gupta
Strutture: BMSF Design Consultants
Superficie: 3.200 mq
Completamento: 2015
