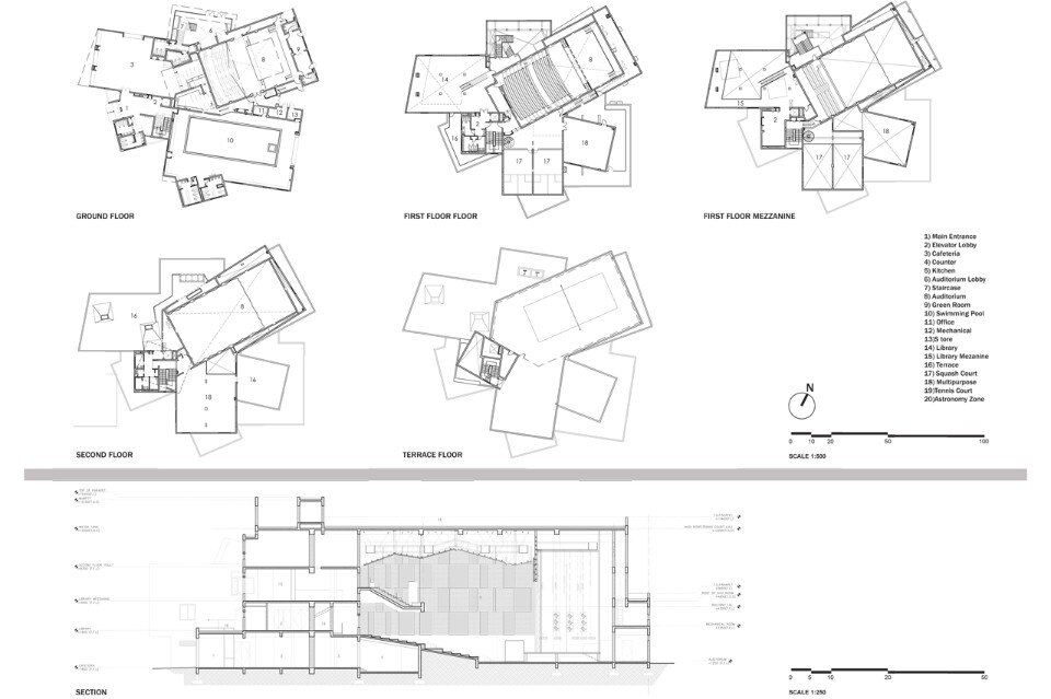
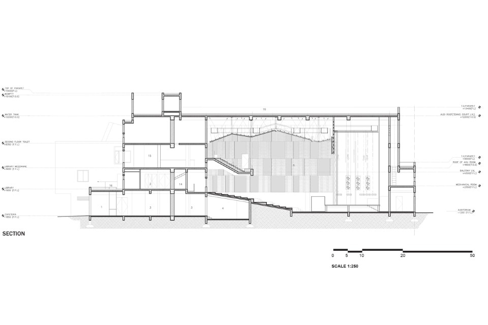
MPH Block, DPS Noida Expressway, Noida, India
Program: school and multifunctional space
Architects: R+D Studio
Design team: Shikha Doogar, Shridhar Rao, Aditi Bhatia, Sanjoy Kumar Deb, Anshul Kapoor, Samiksha Khanna, Harshat Verma, Mudit Gupta
Structural engineering: BMSF Design Consultants
Area: 3,200 sqm
Completion: 2015
