Casa sul Mar Egeo

Situata su un terreno scosceso, la casa sul Mar Egeo disegnata da Erdil İnşaat ottimizza lo spazio con un grande sbalzo che garantisce viste panoramiche e una piscina con terrazze e giardini. 

Erdil İnşaat, Ma Vie La, casa unifamiliare sul Mar Egeo, Çeşme, Turchia, 2015
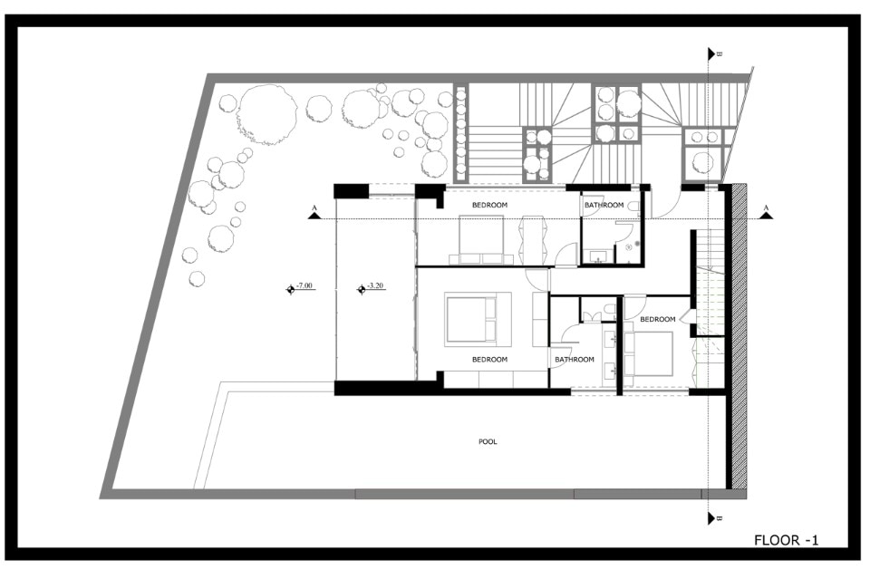
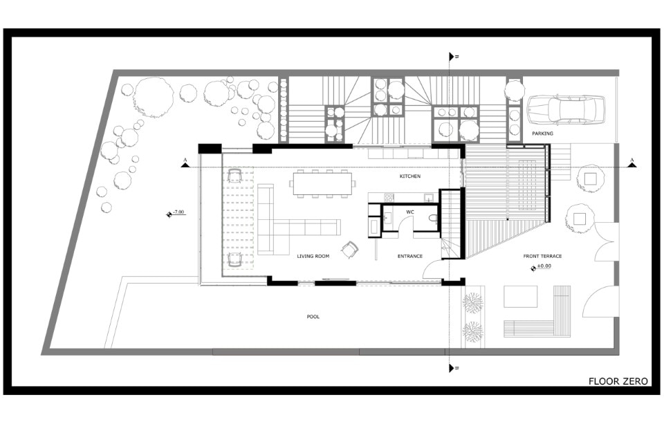
Lo studio Erdil İnşaat ha progettato una casa unifamiliare sul Mar Egeo, la cui struttura presenta per metà uno sbalzo di otto metri, lungo sedici metri e largo sette metri e mezzo. La struttura si presenta come un solido di cemento senza colonne o travi. Sul terreno di 520 metri quadrati, la casa ha un ingombro a terra di soli 64 metri quadrati.
Erdil İnşaat, Ma Vie La, casa unifamiliare sul Mar Egeo, Çeşme, Turchia, 2015
Erdil İnşaat, Ma Vie La, casa unifamiliare sul Mar Egeo, Çeşme, Turchia, 2015
Con un approccio minimalista, sono stati utilizzati cinque materiali fondamentali: calcestruzzo, acciaio, pietra, legno e vetro, con l’obiettvo di sfruttare al massimo il terreno, creando una varietà di spazi aperti da utilizzare a seconda delle esigenze e condizioni atmosferiche.
Erdil İnşaat, Ma Vie La, casa unifamiliare sul Mar Egeo, Çeşme, Turchia, 2015
Erdil İnşaat, Ma Vie La, casa unifamiliare sul Mar Egeo, Çeşme, Turchia, 2015
Per ottimizzare gli spazi abitativi sono stati creati sistemi di chiusura pieghevoli e a scorrimento, la struttura a sbalzo e una piscina sul lato della casa. I sistemi di chiusura trasformano gli spazi esterni in luoghi interni e viceversa, mentre lo sbalzo garantisce una notevole vista panoramica e creando una terrazza coperta. 
Erdil İnşaat, Ma Vie La, casa unifamiliare sul Mar Egeo, Çeşme, Turchia, 2015
Erdil İnşaat, Ma Vie La, casa unifamiliare sul Mar Egeo, Çeşme, Turchia, 2015
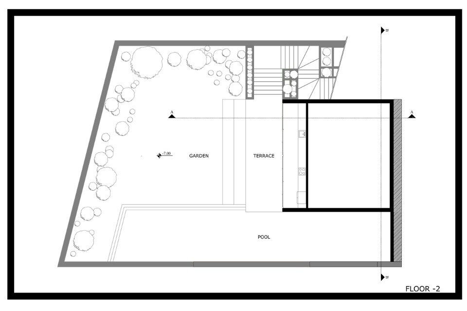
La ripidità del terreno è stata sfruttata grazie al posizionamento della piscina lungo la facciata laterale dell’edificio, sostenuta da una parete ad L grazie alla quale è stato possibile realizzare un grande giardino. La facciata dell’edificio in cemento grezzo corrisponde anche alla struttura portante, con la texture del cassero in legno. 
Erdil İnşaat, Ma Vie La, casa unifamiliare sul Mar Egeo, Çeşme, Turchia, 2015
Erdil İnşaat, Ma Vie La, casa unifamiliare sul Mar Egeo, Çeşme, Turchia, 2015
Il legno è stato utilizzato sia per le persiane sia per i pavimenti delle stanze private, mentre negli spazi comuni interni si è scelto di usare marmo bianco, in contrasto con la pietra ruvida degli esterni. Il paesaggio è stato progettato con piante locali, come ulivo, lentischio e cipresso fatti crescere in grandi fioriere in cemento e corten, irrigati grazie a una cisterna che raccoglie l’acqua piovana per tutto l’anno.

Ma Vie La, Çeşme, Turchia
Tipologia: single family house
Architetto: Selim Erdil
Team di progetto: Izgi Yazıcı, Gözde Özder
Area: 520 mq
Costo: 1M $
Completamento: 2015

Ultimi articoli di Architettura

Altri articoli di Domus

China Germany India Mexico, Central America and Caribbean Sri Lanka Korea icon-camera close icon-comments icon-down-sm icon-download icon-facebook icon-heart icon-heart icon-next-sm icon-next icon-pinterest icon-play icon-plus icon-prev-sm icon-prev Search icon-twitter icon-views icon-instagram