Galleria
Diller Scofidio + Renfro, Vagelos Education Center, New York, 2016. A sinistra: foto Iwan Baan, courtesy DS+R A destra: foto Nic Lehoux, courtesy DS+R
Diller Scofidio + Renfro, Vagelos Education Center, New York, 2016. Foto Nic Lehoux, courtesy DS+R
Diller Scofidio + Renfro, Vagelos Education Center, New York, 2016. Foto Iwan Baan, courtesy DS+R
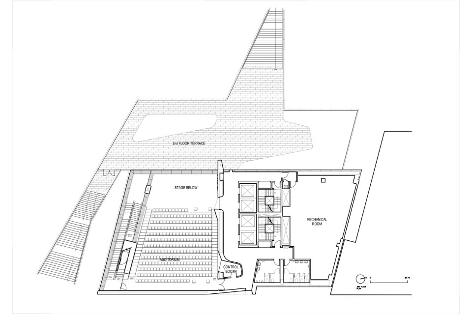
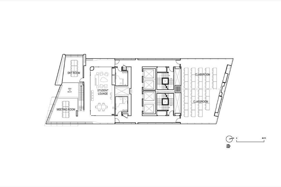
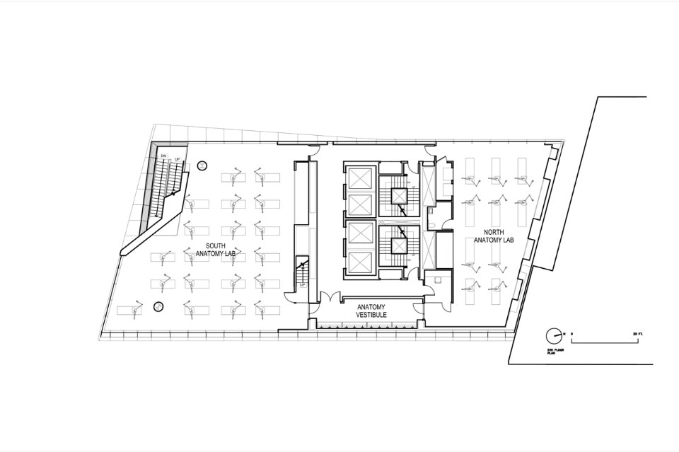
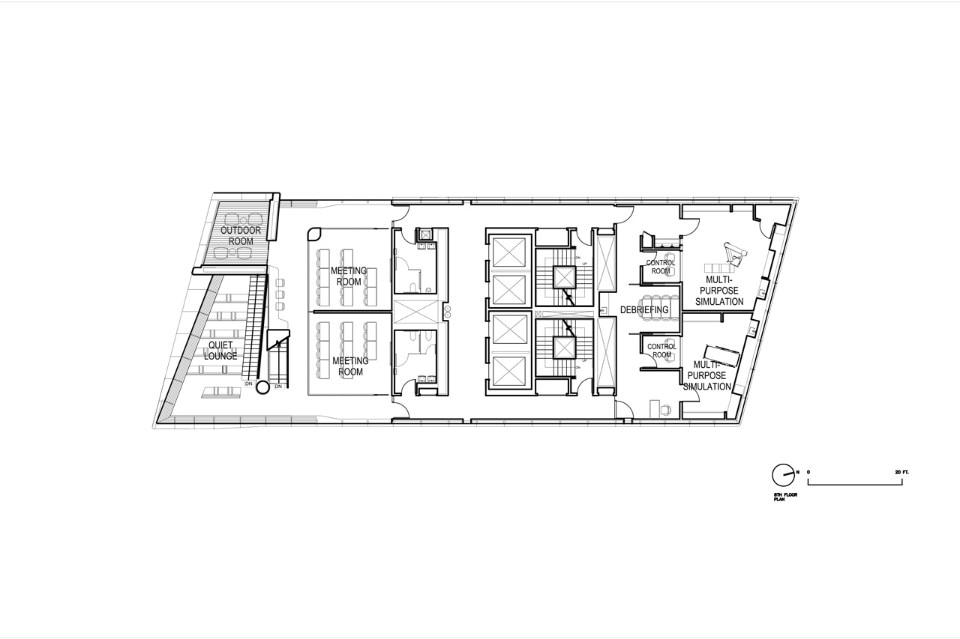
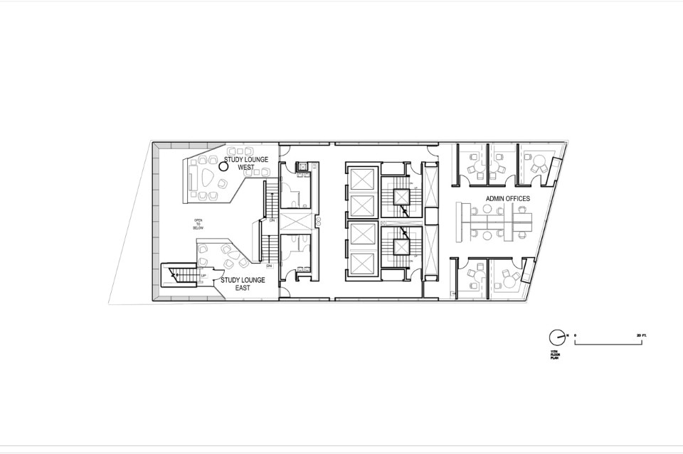
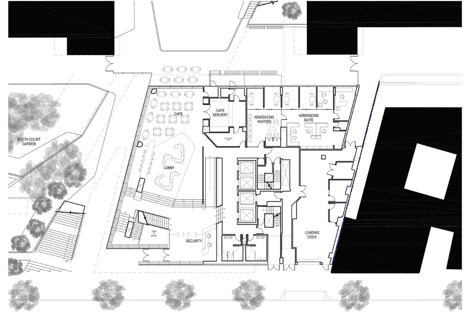
Roy and Diana Vagelos Education Center
Tipologia: centro educativo
Architetti: Diller Scofidio + Renfro
Esecuzione: Gensler
Strutture: Leslie E. Robertson Associates
Paesaggio: SCAPE/Landscape Architecture
Superficie: 10220 mq
Completamento: 2016
