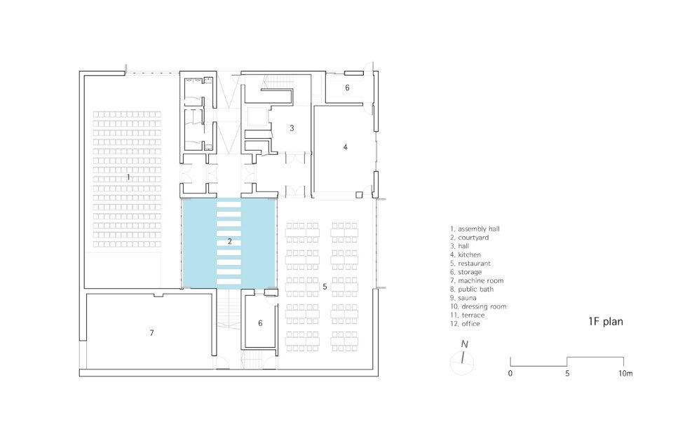
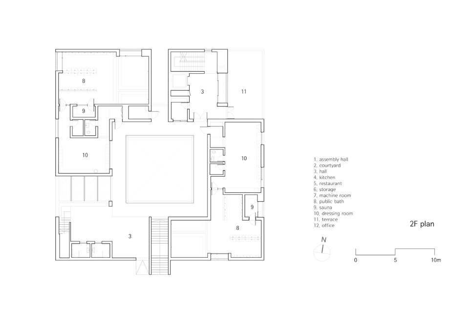
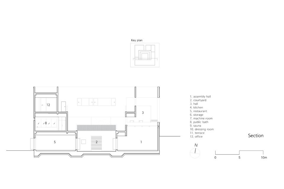
Galleria
The Void, Shinan-gun, Corea del Sud
Tipologia: centro multifunzionale e bagno pubblico
Architetti: Hyunjoon Yoo Architects
Team di progetto: Heo Jinsung, Son Insil, Park Jungkyu, Kwon Jinhee, Ham Seungho
Ingegneria: Min Sung
Costruzione: Joongsan construction company
Superficie: 605 mq
Completamento: 2016
