Archivio Digitale Domus PRO

Casa a Bonfin

Lo studio AZO. Sequeira Arquitectos Associados ha realizzato a Porto un edificio di cemento, vetro e legno sulla base della forma dell’edificio preesistente.

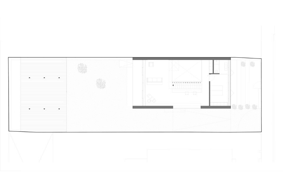
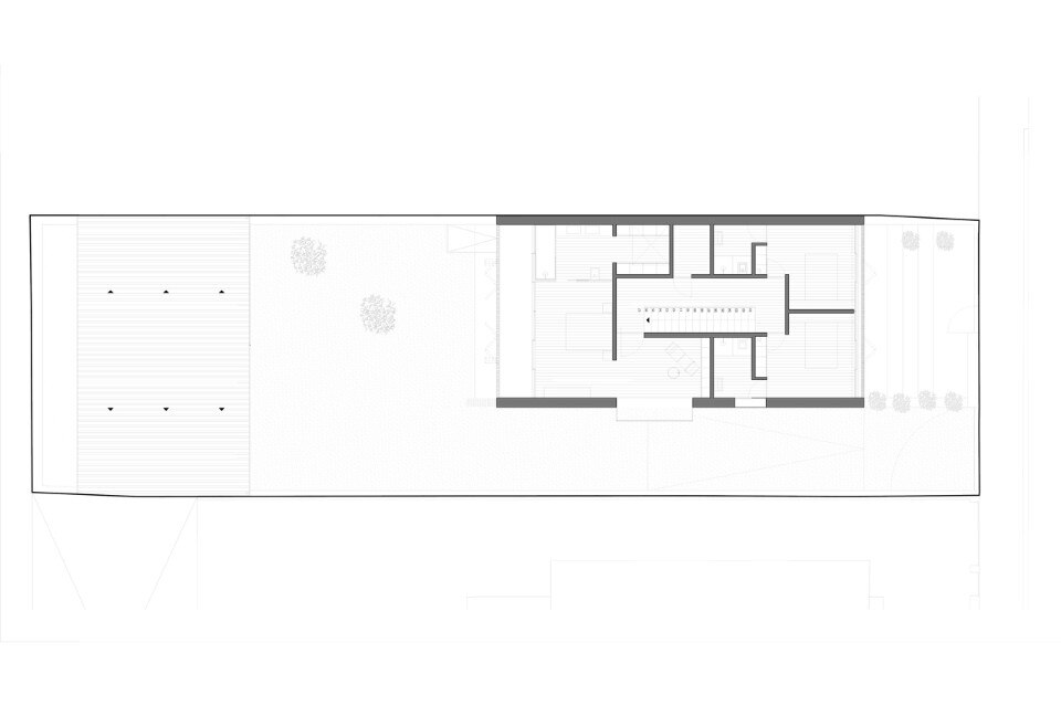
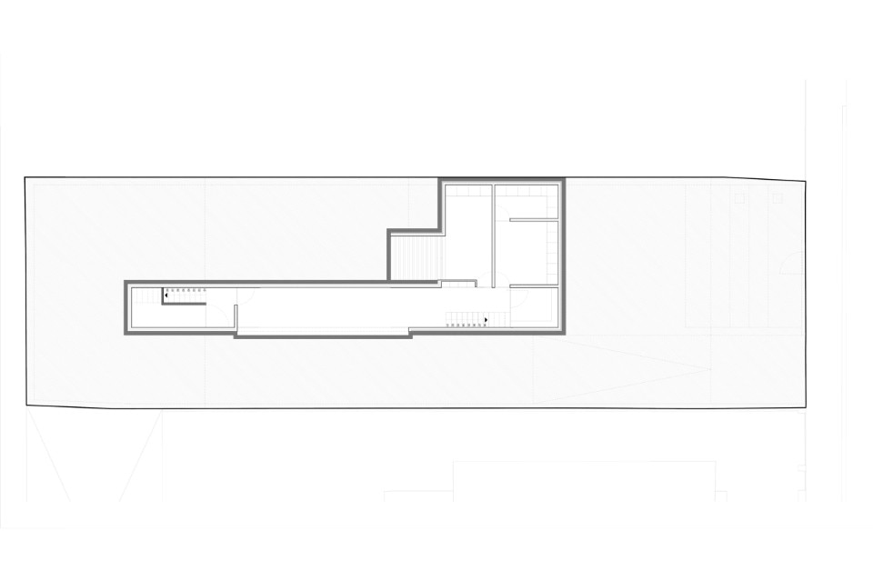
AZO. Sequeira Arquitectos Associados Lda, Casa a Bonfin, Porto, 2015
Casa Bonfin è la ricostruzione di una casa preesistente a Porto, nel nord del Portogallo, risalente alla fine degli anni Settanta. È destinata a una giovane famiglia che vive in città. Questa famiglia ha voluto una casa di quattro piani, funzionale e con ampi spazi liberi, per un totale di circa 450 mq.
AZO. Sequeira Arquitectos Associados Lda, Casa a Bonfin, Porto, 2015
AZO. Sequeira Arquitectos Associados Lda, Casa a Bonfin, Porto, 2015
AZO. Sequeira Arquitectos Associados Lda, Casa a Bonfin, Porto, 2015
AZO. Sequeira Arquitectos Associados Lda, Casa a Bonfin, Porto, 2015
Lo studio AZO. Sequeira Arquitectos Associados, con sede a Braga, ha progettato e realizzato un edificio in cemento sulla base della forma dell’edificio preesistente. Le facciate principali sono rivestite da pelle di legno che riprende colori e materiali dell’intorno.

Ultimi articoli di Architettura

Altri articoli di Domus

China Germany India Mexico, Central America and Caribbean Sri Lanka Korea icon-camera close icon-comments icon-down-sm icon-download icon-facebook icon-heart icon-heart icon-next-sm icon-next icon-pinterest icon-play icon-plus icon-prev-sm icon-prev Search icon-twitter icon-views icon-instagram