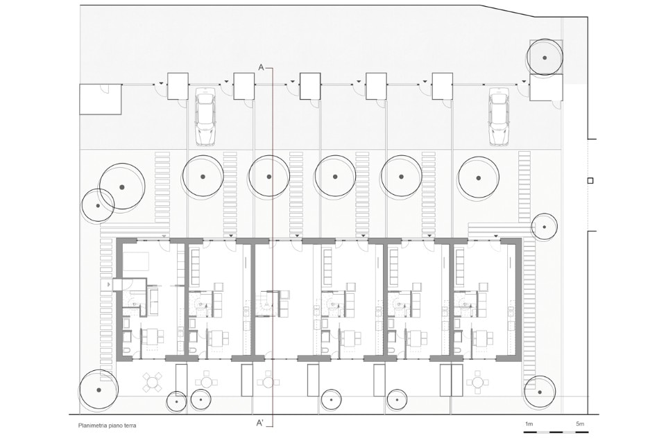
Sei case nel fienile, Sesto San Giovanni, Milano
Tipologia: complesso residenziale
Architetti: Gino Guarnieri, Roberto Mascazzini
Collaboratori: Jacopo Agnolazza, Matteo Polesso, Valentina Sonzogni Davide Tricoli, Marco Zanini
Area totale: 1.200 mq
Superficie abitabile: 900 mq
Costo: 1.400.000 €
Completamento: 2015
