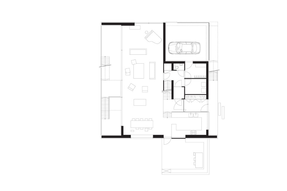
I più begli esempi storici sulle Alpi sono le abitazioni grandi (o fattorie) per le famiglie numerose utilizzate solo nel periodo estivo.
Ispirato dal suggestivo “Grand Chalet Balthus” a Rossinière, architettura caratterizzata da un tetto molto aggettante, il progetto del nuovo chalet di 500 mq è contenuto all’interno di un volume molto chiaro, in cui la copertura disegna la cornice e il carattere dei prospetti.
Chalet Anzère
Tipologia: casa unifamiliare
Architetti: SeARCH
Completamento: 2015
