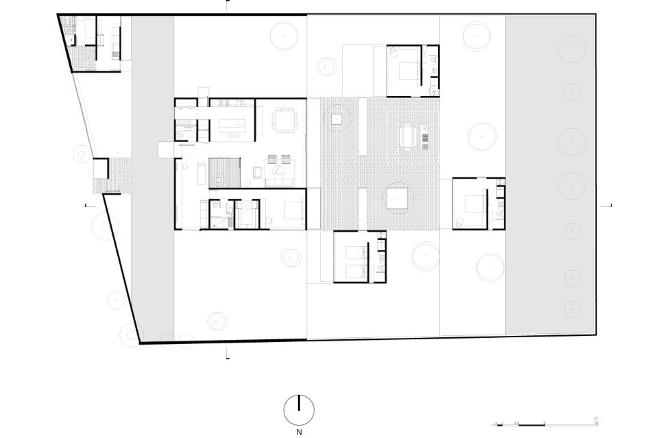
La casa, fin dall’inizio, è stata posta su una griglia di 5x5m e questo per avere una certa flessibilità durante il processo creativo, facilitando la riconfigurazione del rapporto tra i volumi. Il nome 4.1.4 deriva dalla sua volumetrie costituita da una casa centrale, quattro volumi principali, una piazza centrale e quattro patii.
Il progetto è nato posando i quattro componenti della casa sul sito. La casa principale di circa 155 mq è accessibile da un cortile centrale che agisce come elemento di distribuzione che conduce alla cucina, alla sala da pranzo e alla camera da letto principale, così come filtro alla luce naturale per tutte le aree pubbliche. Le suite di soli 25 mq disegnano un gioco di ombre intorno alla piazza centrale, e ciascuna contiene una camera da letto, un bagno e un guardaroba, in modo da essere indipendenti dalla casa.
Galleria
01-PLANTAS ARQUITECTONICAS PARA PUBLICACION
4.1.4 House, Jurica, Queretaro, Messico
Tipologica: casa vacanze
Architetti: AS/D Asociación de Diseño (Paola Morales Orantes + Fernando Velasco Rivera Torres)
Team di progetto: Santiago García de Letona, Adela Rochmann, Eduardo Palomino, Piergianna Mazzoca, Fernando Polidura
Impresa: VQZ Arquitectura + AS/D Asociación de Diseño
Ingegneria strutturale: Carlos Vargas
Area: 270 mq
Completamento: 2014
