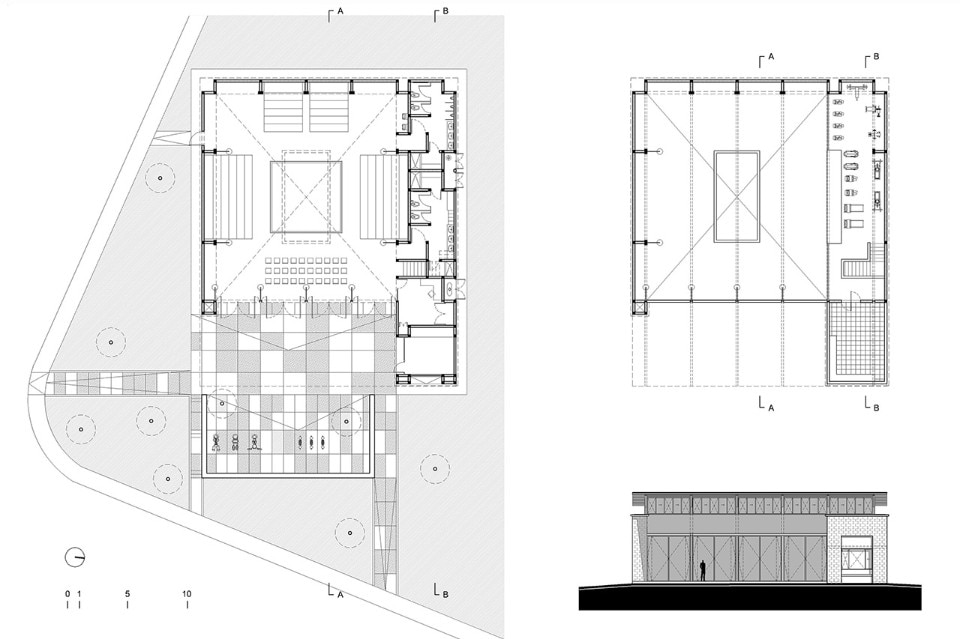
Una strategia supplementare mira a sviluppare un programma complementare: una piazza che rende ancora più pubblico il luogo. Inoltre, al progetto si aggiunge un piccolo spazio di vendita per sostenere economicamente gli istruttori che operano come volontari in palestra. La piazza, ampia circa duecento metri quadrati, è protetta da una struttura a sbalzo che fornisce ombra e estende l’uso di questo spazio anche quando la palestra è chiusa. La piazza funziona anche come estensione dello spazio interno quando le porte – quattro aperture di 3,8 per 3,8 metri – sono aperte. Pannelli traslucidi superiori e la luce proveniente dall’alto sottolineano l’area del ring, rievocando le vecchie tensostrutture adibite a questo sport. Al secondo livello, un’area pesi e una terrazza per la formazione privata completano il programma architettonico.
Per aggiungere valore al processo di costruzione e sfruttare il profilo sociale di questo progetto, Urbánika ha invitato la fotografa Guadalupe Campos per immortalare i lavoratori edili (muratori e capisquadra), gli utenti e gli allenatori. Il progetto di documentazione ha lo scopo di dare un volto ai partecipanti, che di solito restano anonimi.
Galleria
Gimnasio de Box Riberas, Chihuahua, Messico
Tipologia: palestra di boxe
Architetti: Urbánika (Federico Campos & Oscar Chávez)
Collaboratori: Leoncio Ceballos, Ana Lucia Lozoya, Humberto Mendoza, Adriana Baca, Lorena Méndez
Committente: Municipio de Chihuahua / Instituto Municipal de Cultura Física / CONADE
Area: 659 mq
Completamento: 2013
