Galleria
/Users/ernie/Dropbox/iWork/EarlyYears/13 SilverWoodHouse/Publish SWH.dwg
3r Ernesto Pereira, SilverWood House, Mindelo, Vila do Conde, Portogallo. Prospetto
/Users/ernie/Dropbox/iWork/EarlyYears/13 SilverWoodHouse/Publish SWH.dwg
3r Ernesto Pereira, SilverWood House, Mindelo, Vila do Conde, Portogallo. Prospetto
/Users/ernie/Dropbox/iWork/EarlyYears/13 SilverWoodHouse/Publish SWH.dwg
3r Ernesto Pereira, SilverWood House, Mindelo, Vila do Conde, Portogallo. Prospetto
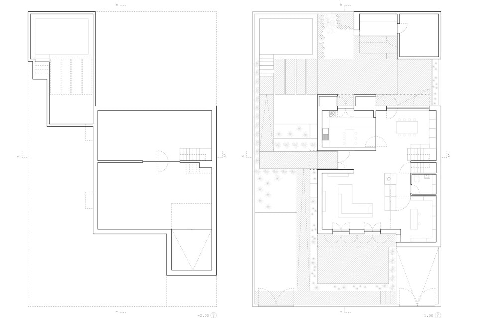
/Users/ernie/Dropbox/iWork/EarlyYears/13 SilverWoodHouse/Publish SWH.dwg
3r Ernesto Pereira, SilverWood House, Mindelo, Vila do Conde, Portogallo. Piante del piano interrato e del piano terra
/Users/ernie/Dropbox/iWork/EarlyYears/13 SilverWoodHouse/Publish SWH.dwg
3r Ernesto Pereira, SilverWood House, Mindelo, Vila do Conde, Portogallo. Pinate del pirmo piano e della copertura
/Users/ernie/Dropbox/iWork/EarlyYears/13 SilverWoodHouse/Publish SWH.dwg
3r Ernesto Pereira, SilverWood House, Mindelo, Vila do Conde, Portogallo. Sezione
SilverWood House, Mindelo, Vila do Conde, Portogallo
Tipologia: casa unifamiliare
Architetti: 3r Ernesto Pereira Architecture
Ingegneria: Rui Martins . Engitek
Cementi armati: Abilio Costa, Manuel Costa, Paulo Moreira
COpere in legno e finiture: Ernesto Pereira, João Rocha, Mauro Gonçalves. Helder Oliveira, Helder Moreira, Albino Paços, Afonso Esperança
Impianto elettrico: Bruno Moreira
Impianto idraulico: Albino Labruge
Serramenti: Ivan Piloto
Giardino: Maria José Pereira
Consulenza: Ernesto Queirós Pereira
Costo: € 100.000
Completamento: 2014
