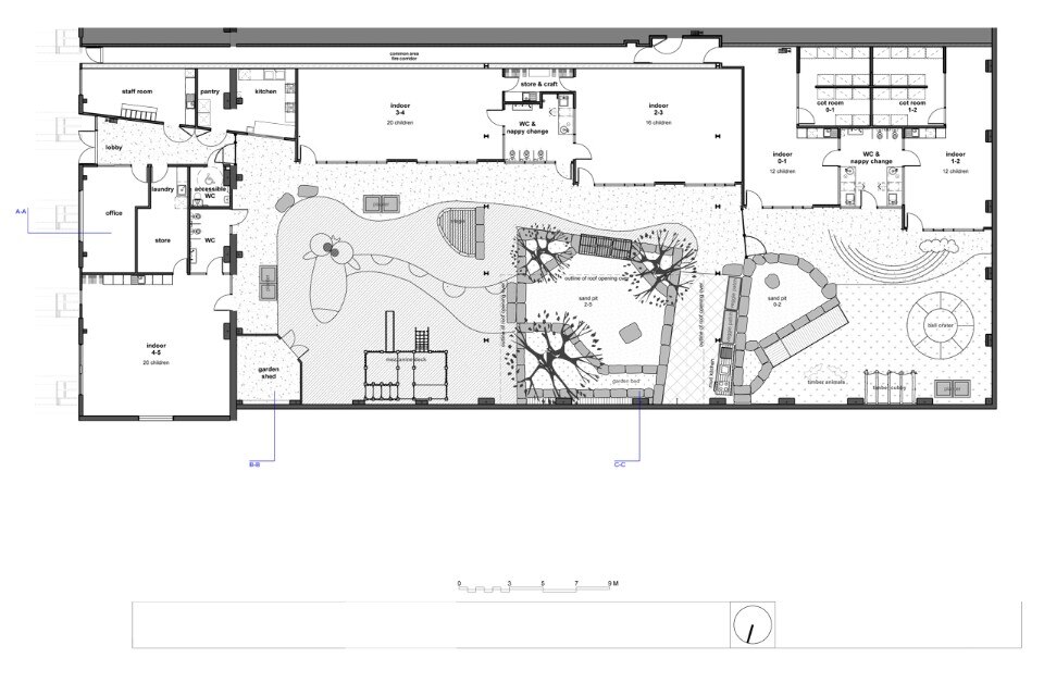
La nuova architettura incorpora lucernari pop-up che consentono al sole di penetrare in profondità nelle sale giochi. L’uso di forme primarie e geometrie platoniche per gli elementi costruttivi offre opportunità di immaginazione e didattiche. In collaborazione con l’architetto paesaggista CO-AP ha integrato una serie di spazi elevati non uniformi circondati da soffici piattaforme di atterraggio. Questi forniscono aree gioco per sfidare l’equilibrio e promuovere la valutazione dei rischi, che sono fondamentali per lo sviluppo della prima infanzia.
Un sistema di fabbricazione modulare ha prodotto un edificio economico ed efficiente, completato in sole 12 settimane.
Galleria
Camperdown Childcare, Camperdown, Australia
Tipologia: asilo
Architetti CO-AP
Team di progetto: Will Fung, Patrik Braun, Tina Engelen
Consulenti paesaggisti e per le aree gioco: Fiona Robbé Landscape Architecture
Strutture: Partridge Structural
Idraulica: Glenn Haig & Partners
Gestione acque piovane: Ecological Design
Austica: Acoustic Logic
Consulenza energetica e anticendio: BCA Logic
Meccanical: Northrop Consulting Engineers
Impresa: Blitz Group Pty Ltd
Realizzazione progetto del verde : Jamie Miller Landscapes
Realizzazione sistemi meccanici: R&J Airconditioning Services
Committente: Explore & Develop Camperdown
Costi di costruzione: $850,000.00
Area: 1.113 mq
Completamento: 2014
