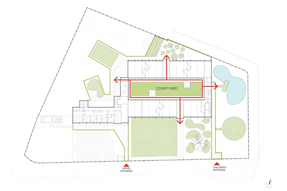
L’obiettivo primario di questo progetto è stato quello di offrire una costante interazione tra gli studenti e la natura, requisito del metodo Montessori ed esperienza sempre più rara all’interno di una città in rapida crescita come Bangalore. Per raggiungere questo obiettivo, i confini tra dentro e fuori sono sfocati, e tutti gli ambienti di apprendimento (le aule) sono accessibili da un passaggio coperto circumnavigando un cortile densamente piantumato.
Quattro punti di accesso all’esterno disegnano una sorta di girandola nel cortile centrale. Le attrezzature del paesaggio ricreativo e funzionale includono uno spazio per l’arte, anfiteatro, parco giochi, vasca della sabbia, labirinto, e giardini per ogni aula che si irradiano intorno al perimetro dell’edificio, consentendo un facile accesso, controllo e manutenzione.
Questo progetto è la prima scuola Montessori di Ekya Early Years, e rappresenta il prototipo per interventi futuri.
Il programma include uno spazio per uffici e reception, 13 ambienti di apprendimento, aula di arte, sala audiovisiva, aree comuni flessibili e spazi ricreativi e didattici all’aperto. Una delle maggiori sfide di questo progetto è stata il riprisitino del fabbricato esistente, in avanzato satto di rovina, in modo che fosse adatto per una scuola.
A causa dei costi e dei vincoli strutturali, il telaio e il rivestimento dell’edificio sono stati mantenuti, con piccoli interventi per creare ulteriori collegamenti tra spazi interni ed esterni e per evidenziare gli ingressi principali. In questo quadro predefinito, gli interventi architettonici si adattano alla scala dei bambini, creando angoli di lettura tra le aule e zone soggiorno formali e improvvisate.
Galleria
Ekya Early Years, Kanakapura Road, Bangalore, India
Tipologia: scuola materna
Architetti: CollectiveProject
Design team: Cyrus Patell, Eliza Higgins, Ajantha S, Grégoire Rossignol
Area: 2.300 mq
Completamento: 2014
