Rievocando i prototipi precedenti – come l’installazione “Loom Hyperbolic” alla Biennale di Marrakech del 2012 – e la storia dei padiglioni del XX secolo, Barkow Leibinger ha concepito una struttura leggera in vetro e acciaio.
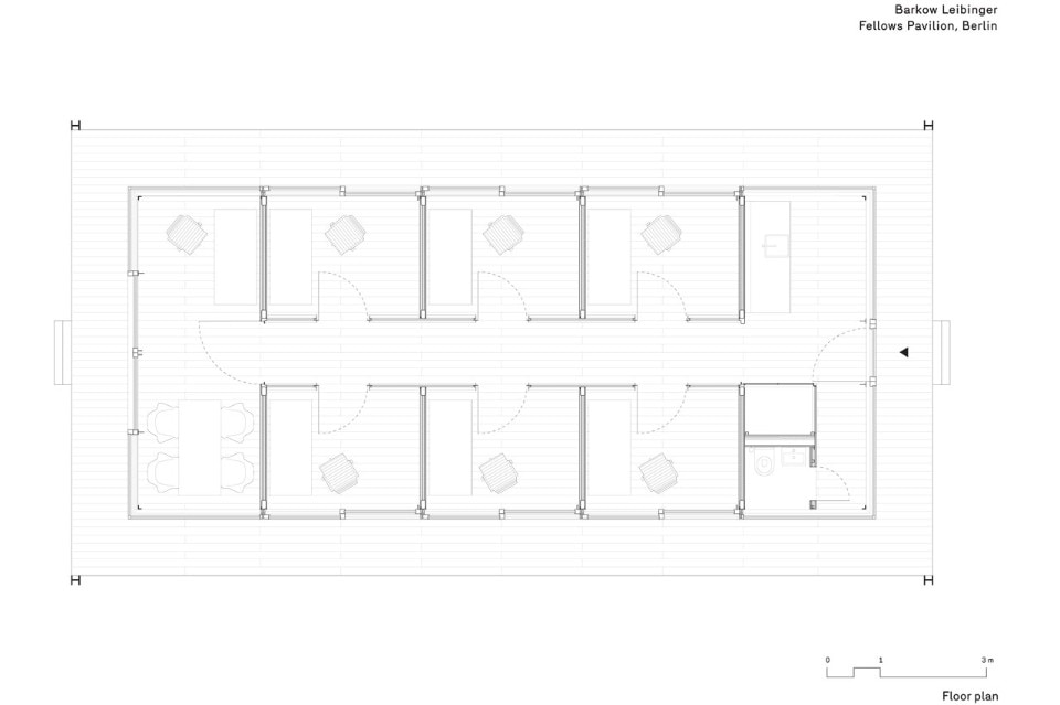
Il fulcro dello spazio, che ospita sette studi e una piccola cucina, è il tetto di travi di acciaio che forma una superficie a doppia curvatura, che sembra galleggiare sopra gli spazi inferiori.
La forma del tetto del padiglione è il risultato della “geometria governata”: offset di linee rette ruotate per produrre quattro paraboloidi iperbolici, una forma che è allo stesso tempo astratta e familiare, in quanto riflette, anche se solo in prospetto, il tetto a capanna della villa storica.
La presenza del padiglione è ulteriormente rafforzata dal suo apparente “galleggiare” sopra il prato e dal colore bianco dominante. Un sistema di illuminazione a LED, situato nella parte superiore delle pareti che delimitano gli studi, enfatizza ulteriormente questo effetto di notte illuminando il soffitto, che sembra fluttuare sopra la struttura.
Il tetto è sostenuto agli angoli da quattro travi a I che servono anche come canali di scolo dell’acqua piovana. Una piattaforma in acciaio rivestita di listoni di quercia, leggermente rialzata, costituisce il piano di calpestio per esterni e interni. La facciata in vetro di porte scorrevoli e finestre è arretrata rispetto al perimetro dell’edificio, creando un portico continuo che circonda l’intera struttura e permette una maggiore trasparenza del padiglione. All’interno, gli spazi di studio di 7 mq sono divisi da pareti a tutt’altezza in vetro, rovere e acciaio.
Gli spazi si aprono su un corridoio interno con porte di vetro, e sul giardino con grande vetrate scorrevoli, che possono essere chiuse da tende per la privacy. Ogni ufficio è dotato di scaffali in metallo, cassetti e una scrivania, integrati da mobili da Vitra. Il vetro a tre strati, il riscaldamento a pavimento e a parete, e l’isolamento di pavimenti e tetto contribuiscono all’efficienza energetica della struttura.
Fellows Pavilion, American Academy, Berlino
Tipologia: padiglione
Architetti: Barkow Leibinger
Team: Tobias Wenz (progettista), Gustav Dusing, Ulrich Fuchs, Annette Wagner
Ingegneria strutturale: Hörnicke-Hock-Thieroff (HHT)
Ingegneria meccanica: HDH – Ingenieurgesellschaft für technische Gebäudeausrustung mbH
Architetto paesaggista: Capatti Staubach
Area: 85 mq
Completamento: 2015
