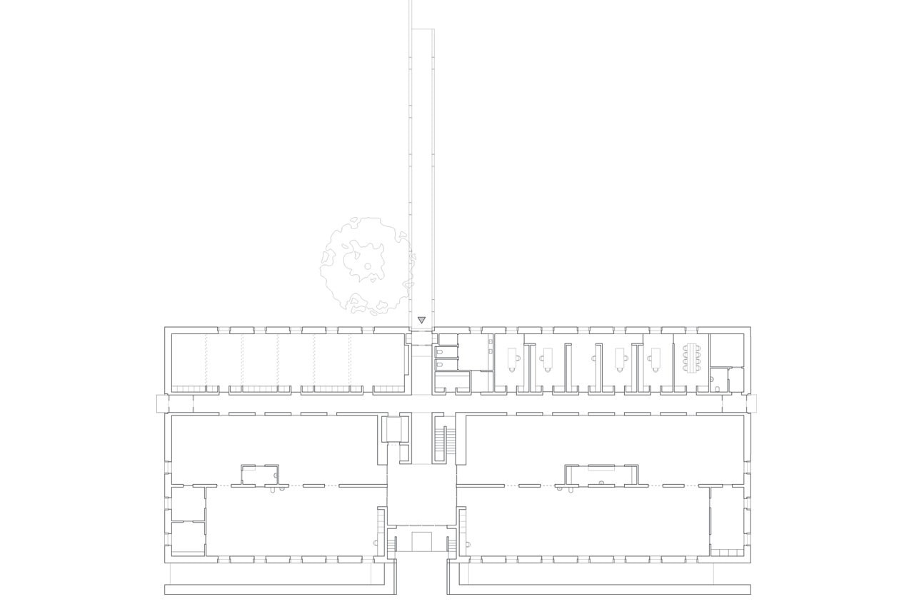
I laboratori progettati per ospitare queste attività industriali su piccola scala sono situati in modo far apparire la costruzione come una naturale estensione delle strutture esistenti. Sebbene abbia una pianta estesa, la nuova architettura si adagia nel terreno riducendo al minimo l’impatto visivo sul paesaggio.
Il linguaggio dei prospetti attinge dal vocabolario sviluppato per il progetto dell’abbazia di Novy – ispirato al progetto di San Bernardo di Chiaravalle di architettura cistercense sviluppato nel dodicesimo secolo, con la sua enfasi sulla luce, la semplicità delle proporzioni e la chiarezza dello spazio – arricchito di nuovi pattern e texture.
Galleria
John Pawson, Laboratorio del Monastero di Nostra Signora di Nový Dvůr, Boemia, Repubblica Ceca
John Pawson, Laboratorio del Monastero di Nostra Signora di Nový Dvůr, Boemia, Repubblica Ceca
John Pawson, Laboratorio del Monastero di Nostra Signora di Nový Dvůr, Boemia, Repubblica Ceca
John Pawson, Laboratorio del Monastero di Nostra Signora di Nový Dvůr, Boemia, Repubblica Ceca
John Pawson, Laboratorio del Monastero di Nostra Signora di Nový Dvůr, Boemia, Repubblica Ceca
John Pawson, Laboratorio del Monastero di Nostra Signora di Nový Dvůr, Boemia, Repubblica Ceca
John Pawson, Laboratorio del Monastero di Nostra Signora di Nový Dvůr, Boemia, Repubblica Ceca. Sezione e prospetto
John Pawson, Laboratorio del Monastero di Nostra Signora di Nový Dvůr, Boemia, Repubblica Ceca. Pianta
Laboratorio del Monastero di Nostra Signora di Nový Dvůr, Boemia, Repubblica Ceca
Tipologia: laboratorio
Architetti: John Pawson
Architetti responsabili: Stefan Dold, Vishwa Kaushal
Completamento: 2014
