Le rovine di pietra esistenti, vestigia di una casa tradizionale, e la configurazione del lotto sono stati gli aspetti principali che hanno determinato il nuovo progetto. Il programma funzionale ha portato a un’occupazione quasi totale del lotto.
Il primo principio è stato quello di separareil nuovo dall’esistente, anche se sono collegati all’interno. Un volume in pietra rappresenta l’edificio esistente; un volume di cemento quello nuovo.
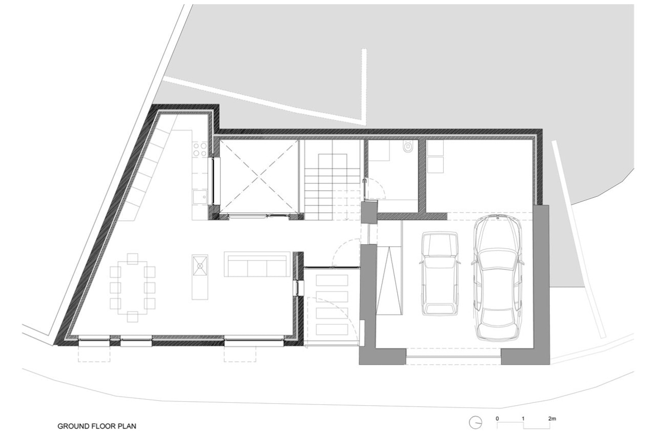
Il secondo principio è stato quello di portare la luce al centro della casa. Sono stati generati due diversi spazi vuoti: l’ingresso, e il cuore della casa – il cortile.
Il cortile e le scale sono al centro della residenza e della vita al suo interno e costituiscono gli elementi chiave per le relazioni spaziali tra i diversi ambienti, l’interno e l’esterno.
Il programma funzionale è stato diviso sui due livelli: il soggiorno, la cucina e il garage sono stati posizionati al piano terra; le camere da letto e la biblioteca al primo piano. La camera padronale è stata posta in un punto privilegiato, nel ricordo della vecchia casa.
La scala e l’identità del sito hanno determinato i dettagli costruttivi e le scelte dei materiali: pietra, cemento, acciaio e legno di quercia. Gli interni sono dominati dal bianco e dal calore del legno. All’esterno le due masse di granito e cemento si richiamano nelle forme.
Galleria
JA House, Guarda, Portugal
Program: single-family house
Architects: Filipe Pina + Maria Inês Costa
Area: 260 sqm
Completion: 2014
