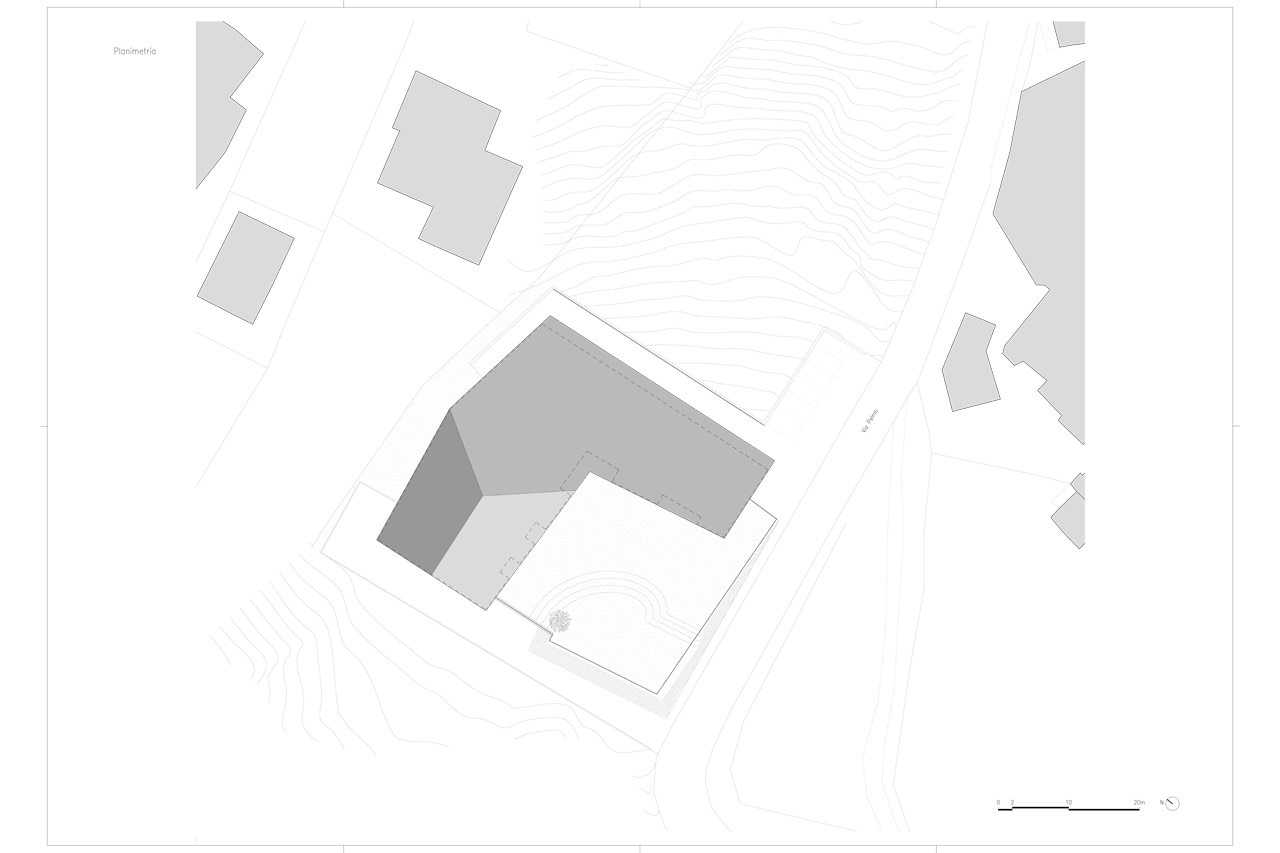
La scuola realizzata è una costruzione su due piani. Al piano terra corrisponde il volume articolato su due allineamenti ortogonali, lungo le direzioni ovest e sud, così da riparare il parco esterno dai venti del nord e ottenere la migliore esposizione solare con benefici in ordine di illuminazione naturale degli spazi interni e di contenimento dei consumi energetici. I fronti ovest e sud sono rivolti verso l’imponente Monte Pelmo che domina l’orizzonte.
Il piano è dedicato alla scuola d’infanzia, all’asilo nido e ai locali di servizio. Nel volume architettonico le zone dell’apprendimento, del relax e della socializzazione – realizzate e arredate per essere adattabili ai progetti educativi – hanno differenti altezze, che determinano situazioni volumetriche nelle quali i bambini possono sperimentare inconsuete situazioni spaziali. Gli spazi della scuola dedicati alle attività dei bambini sono collegati al parco, permettendo di stabilire una continua relazione con lo spazio aperto.
Il parco è realizzato da due piani orizzontali su due livelli, raccordati da una superficie inclinata con andamento curvilineo. Il livello superiore, alla quota del piano terra, è dedicato alle attività motorie e può essere attrezzato con giochi da esterno. Il livello inferiore è stato concepito per ospitare alcune piante locali e per svolgere le attività connesse alla coltivazione di un piccolo orto.
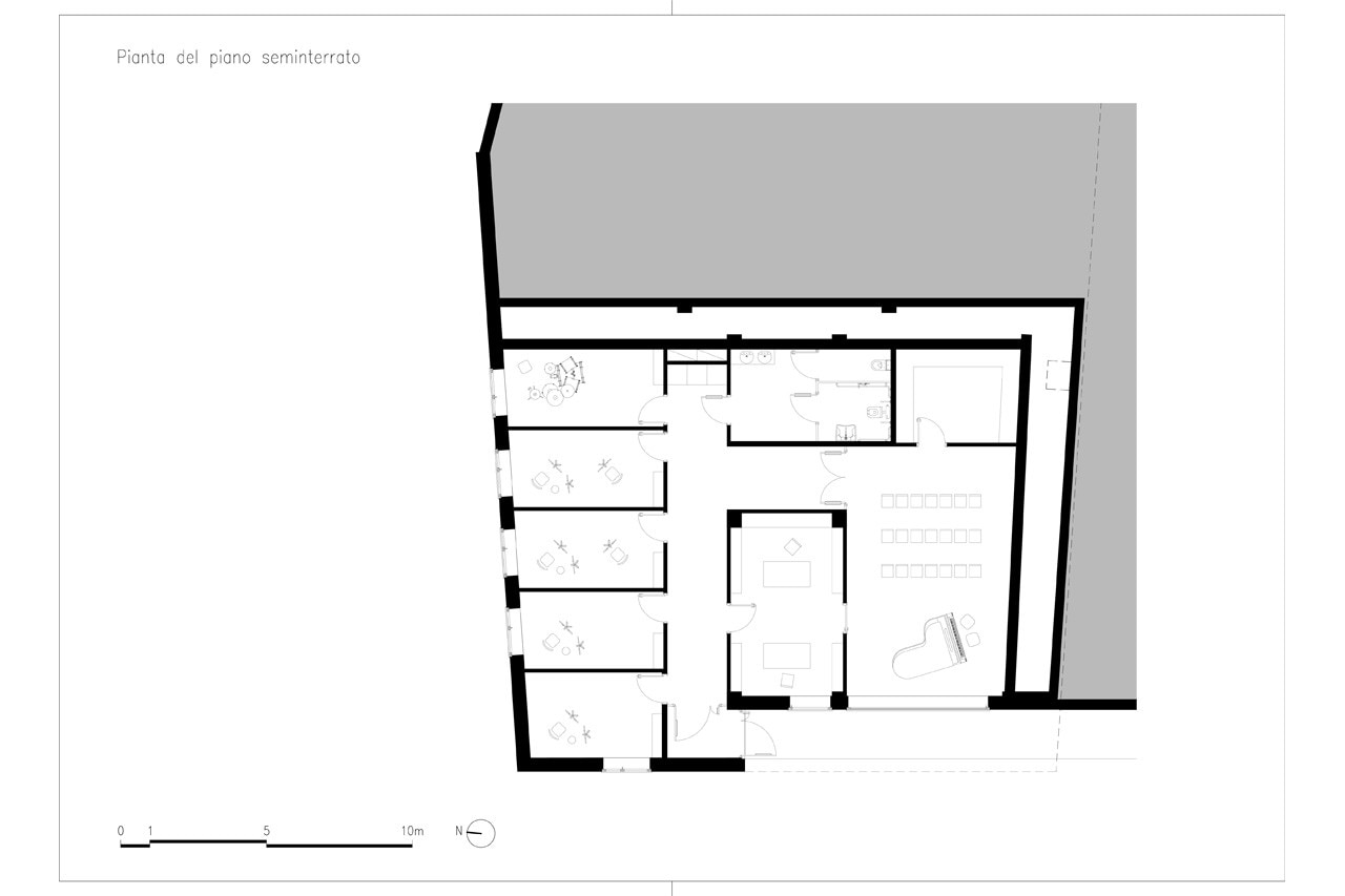
Il piano seminterrato è dedicato alla scuola di musica ed è organizzato con sei aule insonorizzate per gli esercizi con gli strumenti, una stanza per i saggi musicali e due locali di servizio.
Galleria
Model
Model
Model
Scuola d’infanzia e asilo nido con annessa scuola di musica, San Vito di Cadore, Belluno
Programma: scuola
Architetto: Valentino Stella
Team di progetto: Valentino Stella, Roberto De Biasi, Roberto Piazza
Collaboratori: Michele Da Rold, Piergianni Da Rold, Luca Dal Farra
Committente: Comune di San Vito di Cadore
Area piano terra: 1.050 mq (sup. lorda), piano seminterrato 240 mq (sup. lorda) 5.700 mc (vol. lordo)
Costo: € 1.750.000,00
Impresa: Limana Costruzioni s.r.l. (BL)
Arredi: Gonzaga Arredi
Illuminazione: Prandina; Regent
