Il centro è progettato in modo che ogni ambiente, o gruppo di stanze dedicate allo stesso tema, abbia un piano di pertinenza. Questa distribuzione verticale ha determinato il layout interno e i prospetti.
È questa interazione tra la composizione verticale, le diverse altezze dei locali e l’equilibrio tra pieni e vuoti che ha creato il progetto, ponendo l’edificio in relazione con il contesto.
Galleria
COUPE
Dumont Legrand Architectes, Centre d’Animation Gelez, Ménilmontant, Parigi. Sezione
FACADE
Dumont Legrand Architectes, Centre d’Animation Gelez, Ménilmontant, Parigi. Prospetto
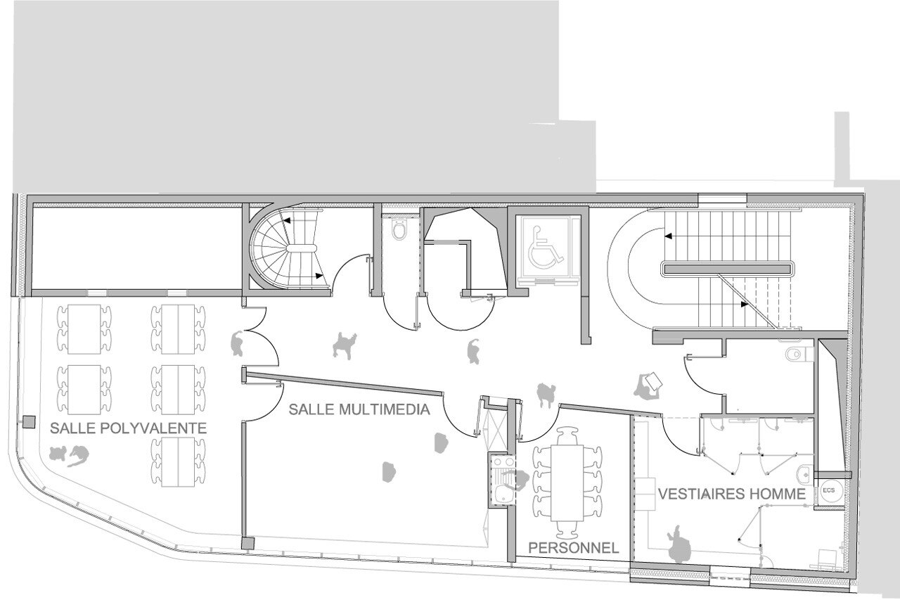
RDC_OK
Dumont Legrand Architectes, Centre d’Animation Gelez, Ménilmontant, Parigi. Pianta del piano terra
R+1_OK
Dumont Legrand Architectes, Centre d’Animation Gelez, Ménilmontant, Parigi. Pianta del primo piano
Centre d’Animation Gelez, Ménilmontant, Parigi
Tipologia: centro culturale
Architetti: Dumont Legrand Architectes
Ingeneria idraulica: Inex
Ingegneria strutturale: EVP
Economia: Philippe Luquet
Ingegneria acustica: Remi Rasking
Segnaletica: Undo Redo
Committente: città di Parigi
Area: 760 mq
Completamento: 2013
