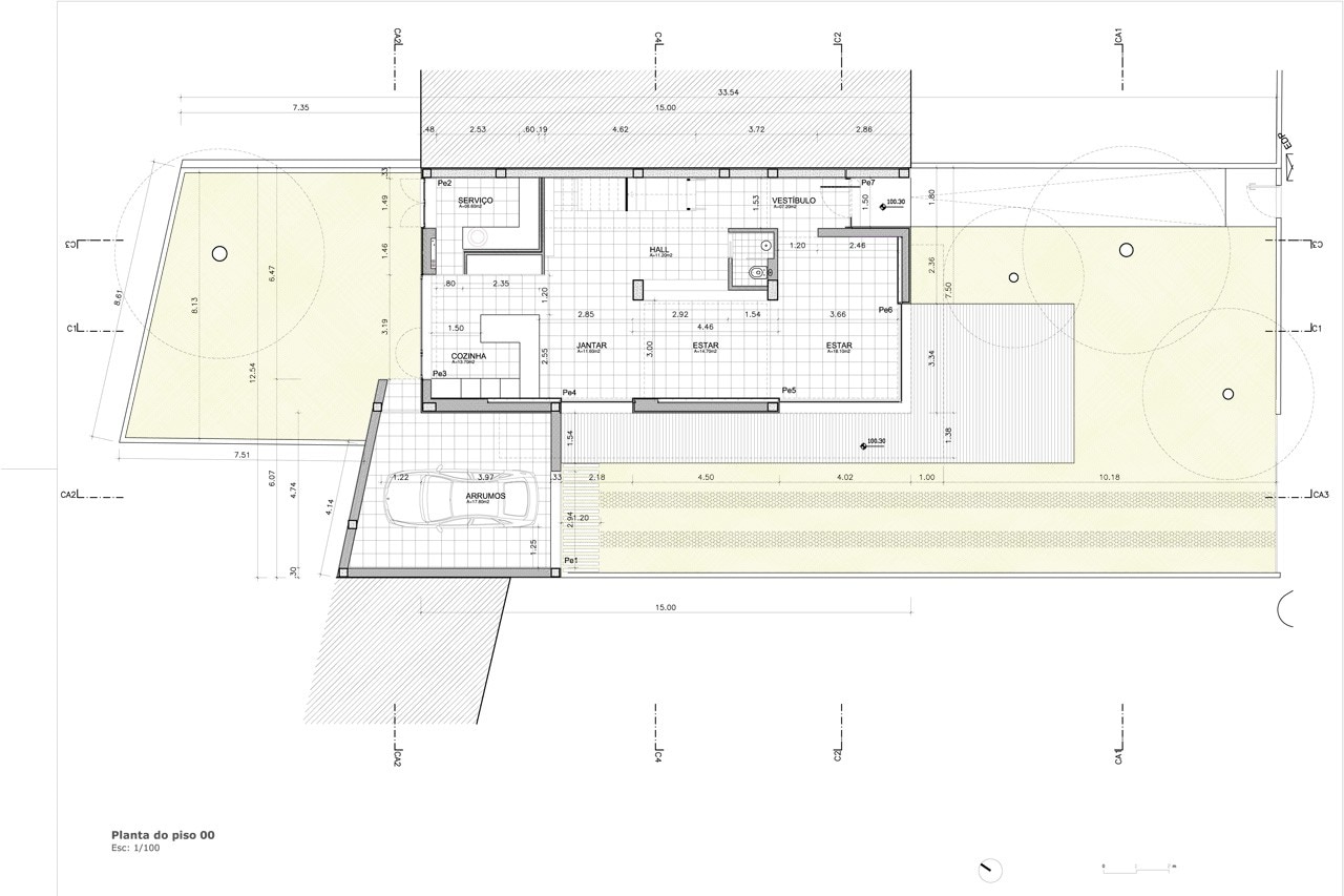
Al piano terra si trovano gli ambienti più pubblici della casa, gli spazi di servizio e, a nord-ovest, il volume del garage. Il piano è pensato come un ambiente unico in direzione nord-sud, in modo che tutti gli spazi funzionali affaccino sull’esterno.
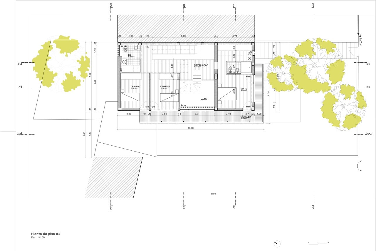
Il primo piano ospita tre camere da letto collegate tra loro dal balcone unico che svolge la doppia funzione di controllo della luce e della privacy grazie al sistema di schermatura in legno sostenuto da una struttura metallica.
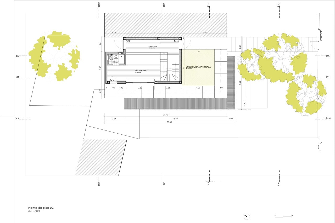
La biblioteca all’ultimo piano è disposta su due livelli connessi all’esterno dal percorso panoramico che circonda il tetto-giardino.
Inserito all’interno di un piano urbanistico definito da numerosi vincoli, l’edificio si propone di offrire agli abitanti un’esperienza spaziale unica e di rispondere in modo efficiente alle esigenze di comfort climatico e luminoso attraverso strategie energetiche passive e l’uso di risorse rinnovabili.
Galleria
Casa a Porto, Portogallo
Architetti: e|348 arquitectura
Completamento: gennaio 2014
