Il sistema di circolazione propone un’interazione tra gli abitanti, con spazi pubblici molto luminosi dai quali si accede agli appartamenti attraverso corridoi bui. I rivestimenti in legno e gli arredi su misura riprendono le proporzioni verticali del tessuto urbano adiacente.
La vicinanza a The Hawthorns, residenza costruita nel 1845 per il banchiere James Pinnonck, ha ispirato la reinterpretazione del revival gotico.
Galleria
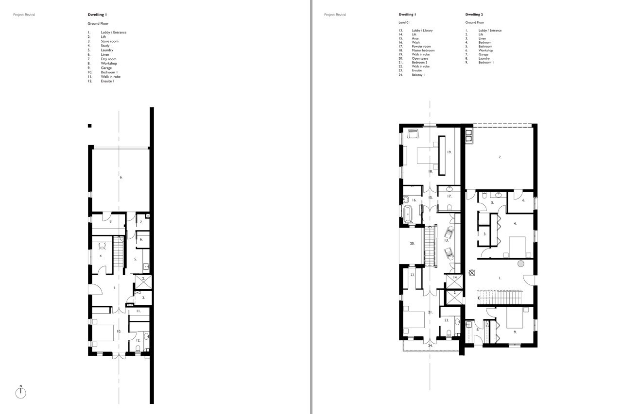
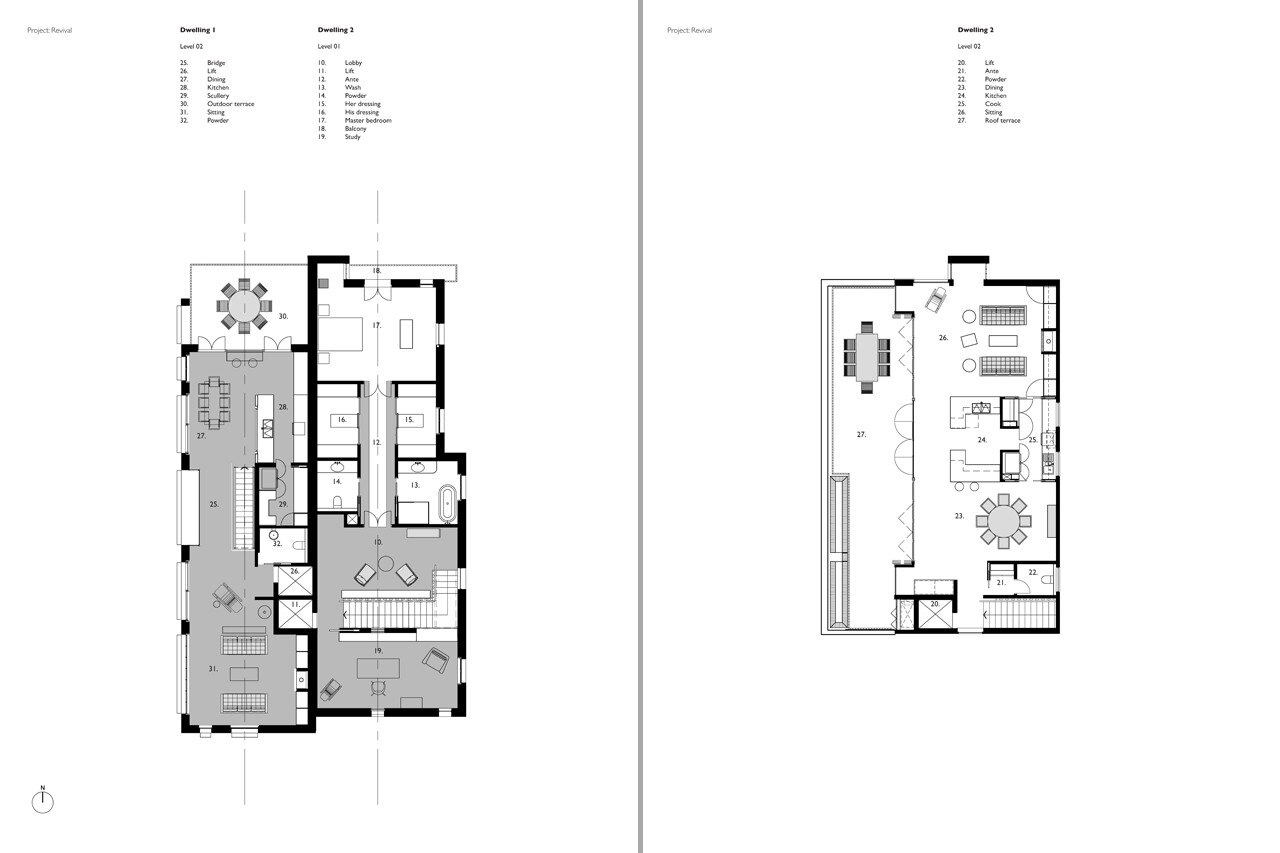
Revival, Hawthorn, Melbourne, Australia
Tipologia: residenziale
Architetti: Honeyman+Smith Architects
Area: 792 mq
Completamento: agosto 2013
