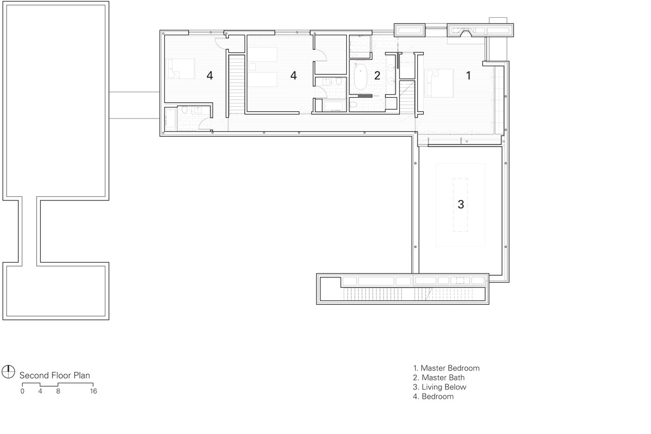
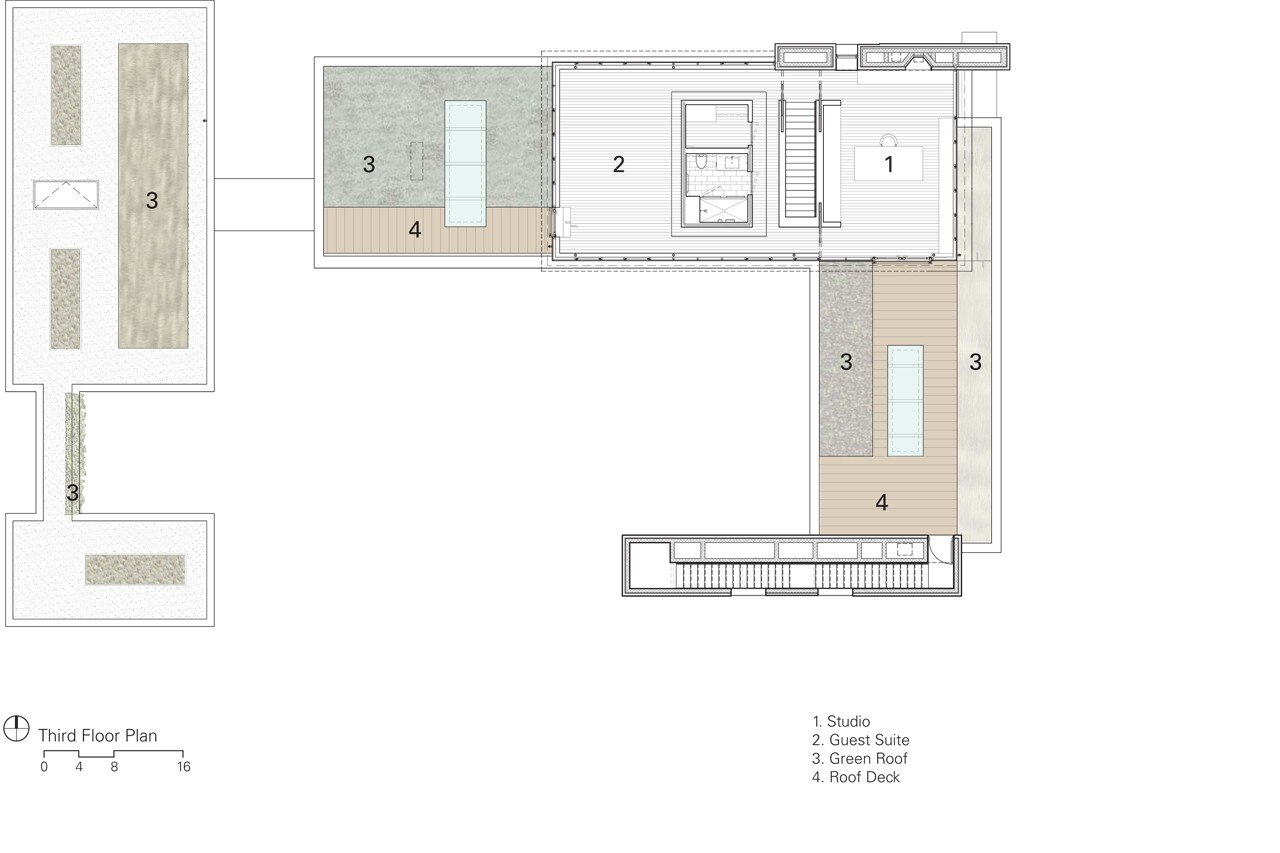
Galleria
Wood House, Chicago, Illinois
Tipologia: residenziale
Architetti: Brininstool + Lynch
Progetto paesaggistico: Coen + Partners
Strutture: Goodfriend Magruder Structures
Ingegneria meccanica: AA Service Company
Area del lotto: 817 mq
Area costruita: 734 mq
Completamento: 2013
