View gallery
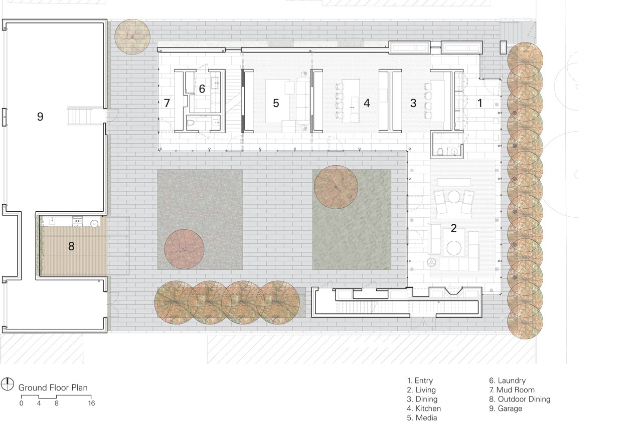
Wood House, Chicago, Illinois
Program: residential
Architects: Brininstool + Lynch
Landscape architecture: Coen + Partners
Structures: Goodfriend Magruder Structures
Mechanical Engineering: AA Service Company
Site area: 817 sqm
Building area: 734 sqm
Completion: 2013
