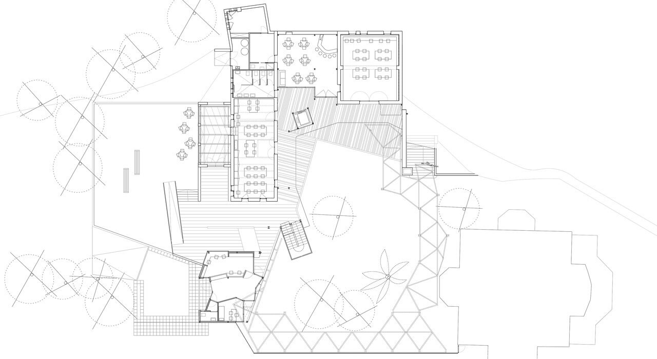
Così, una singola forma geometrica a “L” dialoga con l’edificio principale. Tra i due il patio si colloca come uno spazio di relazione e come il principale spazio esterno del complesso.
La richiesta funzionale fatta dai proprietari riguardo il complesso era principalmente di ampliare la superficie degli edifici ausiliari preesistenti attraverso un collegamento coperto.
Il corridoio è la soluzione proposta per l’ingresso e l’uscita dallo spazio del workshop e delle stanze al primo piano. Il corridoio circonda lo spazio centrale del cortile e offre un collegamento tra l’interno e il patio.
L’aggiunta di stanze consentirà di concentrare le attività interne e la gestione nella struttura principale, dando ai pazienti più spazi nel nuovo edificio.
Nel progetto si è deciso di marcare la differenza tra ciò che è stato mantenuto e ciò che è di nuova costruzione. Pertanto, le facciate dei tetti a capanna del vecchio edificio sono stati ristrutturati con interventi minimi. Per lo stesso motivo, il tetto esterno della galleria a forma di T che collega entrambi gli edifici ha un aspetto molto diverso.
È supportato da una struttura metallica rivestita con pannelli in multistrato. Il nuovo intervento è costruito con un processo a secco, con materiali semi-industriali che forniscono al corridoio un filtro tra le camere e l’esterno.
Arenys de Munt Clinic, Barcellona
Architetti: Josep Miàs Architects
Design team: Adriana Porta, Silvia Brandi, Xavi Bas, Fausto Raposo, Daniel Montes, Nuno Marques, Sebastián de Iruarrizaga, Alfonso Abé, Christian Giovanetti, Giovanni Galdieri, Gabriele Mura, Laura Pomesano, Federico Licini, Marc Subirana, Eleonora Sucato, Elena Melis
Ingegnere strutturale: BOMA
Supervisione alla costruzione: Carles Bou, Josep Miàs
Ingegneria di Progetto: PROISOTEC
Cliente: CTM, Comunitat Terapèutica del Maresme
Impresa costruttrice: Fuset-Roig Construccions SCP
Area edificata: 2.000 mq (lordo)
Costo: < 1M €
Fase di progetto: Marzo 2007 – Dicembre 2012
Realizzazione: Settembre 2007 – Giugno 2013
Fotografia: Adrià Goula
Galleria
Z:\PROYECTOS\2004_ARENYS _Comunitat Terapèutica\5_OBRA\01 PLÀNOLS\publicacions0 Presentación1 (1)
Z:\PROYECTOS\2004_ARENYS _Comunitat Terapèutica\5_OBRA\01 PLÀNOLS\publicacions0 Presentación1 (1)
Z:\PROYECTOS\2004_ARENYS _Comunitat Terapèutica\5_OBRA\01 PLÀNOLS\publicacions0 Presentación1 (1)
