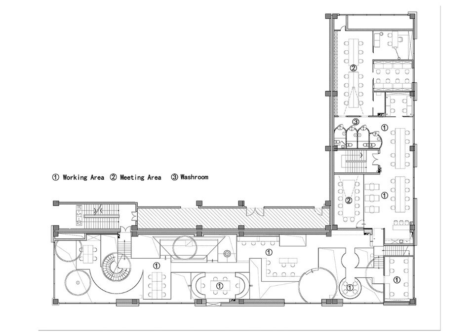
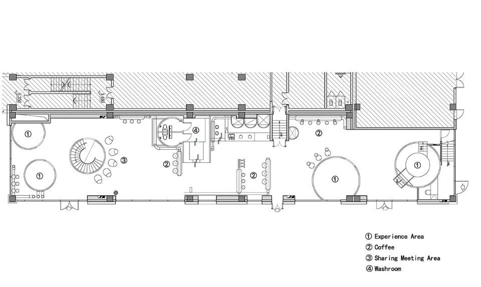
Li Xiang conceived Ideas Lab in Shanghai as a hybrid offering both retail and office areas. The whole environment is populated by reinventions of elements derived from the factories of the first Industrial Age. The renovation generates a double-height space, formerly divided in two floors, and is meant to create an interaction between customers on the ground floor and the staff on the upper level.
View gallery
According to Li Xiang, the project is informed by the invisibility defining the age we live in – referred to as Information Age – which does not allow for iconic symbols to emerge. Therefore, the architect proposes elements that allude to reaction tanks, energy delivery pipes and metallic suspended walkways to evoke the subversive power of technology in the Steam Age. The contemporary twist that characterises the revision of such imaginary is expressed in curvilinear forms and a palette of white, black and grey with hints of pastel pink and golden finishes.
- Project:
- Ideas Lab
- Location:
- Shanghai, China
- Program:
- retail and office
- Architect:
- Li Xang
- Design team:
- Fan Chen, Yan Xiafei, Chen Xue
- Design Company:
- X+Living
- Construction:
- Powerlong group
- Completion:
- 2018
