View gallery
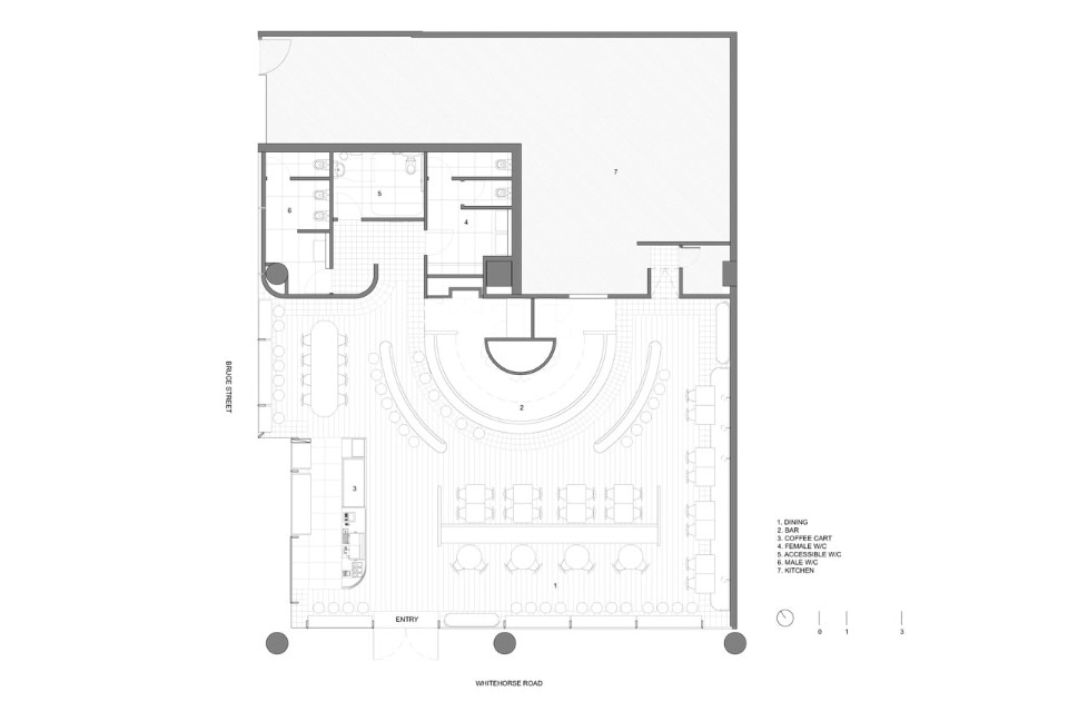
The curved form of the bar and seating layout that surrounds it echoes the “ripple effect”. It accommodates a new kitchen, amenities and coffee cart for multiple areas of service. The space is diversified by custom light fittings and hand crafted screens. The brief was to create a transitional space that would cater for the morning coffee and lunch takeaway trade, for those who wanted to dine for lunch, dinner or just pop in for a drink after work.
View gallery
The Penny Drop, Melbourne, Australia
Program: cafe and restaurant
Architects: We Are Huntly
Team: Kylie Dorotic, Alicia Mckimm, Charlotte Dethick
Contractor: S and K Group
Graphics and branding: Pop & Pac
Area: 360 sqm
Completion: 2016
