View gallery
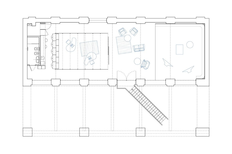
All these spaces require autonomy and flexibility, structure and character, but have to combine their manners with the strong nature of the old artefact. Indeed, the choice was to maintain everything that was already there, exactly the way it was. Uno8a worked on the spatiality to create a sense of clarity and functionality. Genoa-based architects wanted a continuous and almost boundless space, a shifting and fluid studio able to change according to different activities and needs (photoshoots, workshops, lessons, parties…).
PB Studio, Alessandria
Program: office renovation
Architect: Uno8A – Fabrizio Polimone, Beatrice Moretti
Area: 140 sqm
Completion: 2017
