results
No results
Please enter a long search term
Casa Bonjardim
Using a light steel structure, ATKA arquitectos restored a ruined house in Porto, accommodating a simple single housing program through overlapping discontinuous floors.
Time, with its careless passage, eventually drag this place in Porto into a weak or even precarious state.
A visibly ruined rear wall was dismounted and structural parts of wood were removed, both deformed by the same passage of time.
ATKA arquitectos, Casa Bonjardim, Porto, Portugal
Starting from the supporting side walls, the original system of forces was restored using a light steel structure, which provided an alternative to accommodate a simple single housing program by applying a sequence of overlapping discontinuous floors. A black painted triangular mass block, at the entrance of the house, filters the light that still trespasses the front door. From there, the spaces don’t delimit clear boundaries between them but follow one another, with alternations of ceiling heights, rhythms and formal characteristics, until the open blue rooftop patio is reached.
Facing the garden there is a protruding volume covered in cork, reducing the sounds that come from a close playground of a school. The materials that are used stand out for its simplicity: delicate oak flooring, white and clear surfaces that contrast others in black, these severe and impositive.
View gallery
SHARE
PIN IT
SHARE
PIN IT
SHARE
PIN IT
SHARE
PIN IT
SHARE
PIN IT
SHARE
PIN IT
SHARE
PIN IT
SHARE
PIN IT
ATKA arquitectos, Casa Bonjardim, Porto, Portugal
SHARE
PIN IT
ATKA arquitectos, Casa Bonjardim, Porto, Portugal
SHARE
PIN IT
ATKA arquitectos, Casa Bonjardim, Porto, Portugal
SHARE
PIN IT
ATKA arquitectos, Casa Bonjardim, Porto, Portugal
SHARE
PIN IT
ATKA arquitectos, Casa Bonjardim, Porto, Portugal
SHARE
PIN IT
Model
ATKA arquitectos, Casa Bonjardim, Porto, Portugal. Siteplan
SHARE
PIN IT
Model
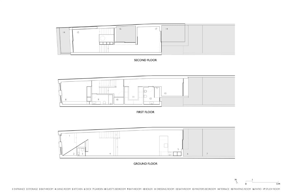
ATKA arquitectos, Casa Bonjardim, Porto, Portugal. Plans
SHARE
PIN IT
Model
ATKA arquitectos, Casa Bonjardim, Porto, Portugal. Section and elevations
SHARE
PIN IT
Casa Bonjardim, Porto, Portugal Program: single-family house Architects: ATKA arquitectos Area: 233 sqm Completion: 2015