View gallery
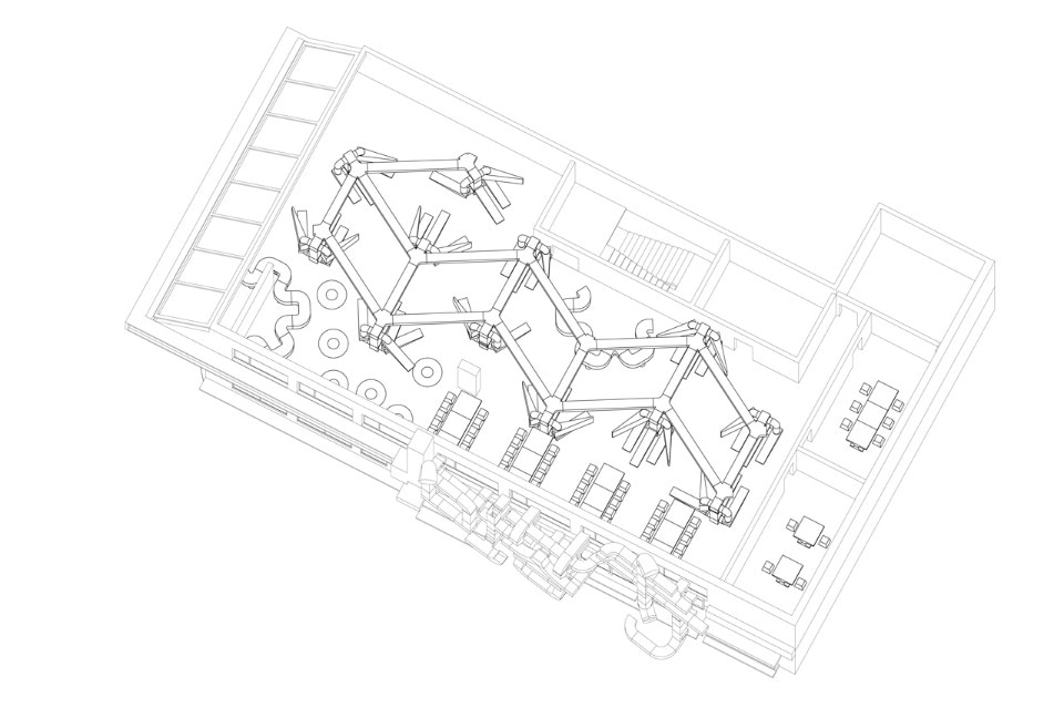
Tubular Baitasi, Baitasi Beijing
Client: Beijing Design Week
Architect: He Zhe, James Shen, Zang Feng
Project Team: Cui Gangjian, Chen Yihuai, Gao Tianxia, Jiang Hao, Lin Tianquan, Liu Qianqian, Sun Liming, Wang Wei, Zhang Minghui, Zhou Ying
Completion: 2015
