Archivio Digitale Domus PRO

Elie Metni: Starch Boutique

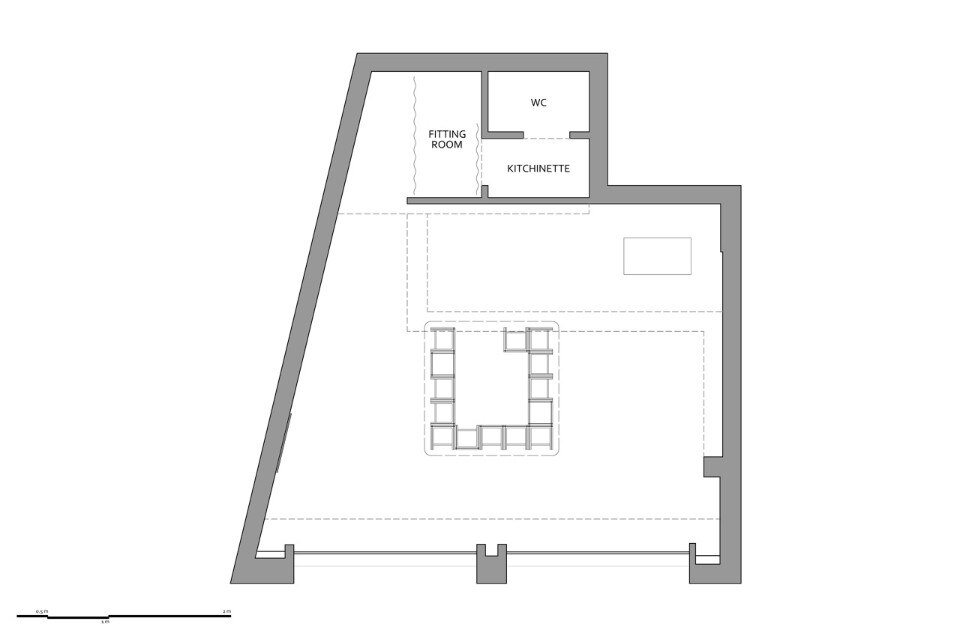
For this shop in Beirut Elie Metni developed a wood installation made of 70 identical wooden stools fitted together to form a new object used as a display for designers’ work.

Elie Metni, Starch Boutique
Libanese architect Elie Metni was commissioned to design the new Starch Boutique in Beirut: a space that every year presents a selection of emerging designers, guiding them through the process of developing their collections, as well as promoting them (communication, marketing, branding and press).
Elie Metni, Starch Boutique, Beirut, Lebanon
Elie Metni, Starch Boutique, Beirut, Lebanon
As a person interacts with the project and its components, he becomes a part of the intervention, offering the products new spaces to inhabit. He also continues the process by assigning them new functions and expanding the project’s boundaries out of the store.
The approach features a free central installation of 70 identical wooden stools fitted together to form a new object used as a display for designers’ work. The product can be used individually or as a set depending on users’ needs and spaces. The installation occupies the center of the space and lays under a floating neon light. The first encounter is a copper wall that initiates the radial flow around the center piece.

Starch Boutique, Beirut, Lebanon
Program: shop
Archtiects: Elie Metni
Completion: 2015

Latest on News

Latest on Domus

China Germany India Mexico, Central America and Caribbean Sri Lanka Korea icon-camera close icon-comments icon-down-sm icon-download icon-facebook icon-heart icon-heart icon-next-sm icon-next icon-pinterest icon-play icon-plus icon-prev-sm icon-prev Search icon-twitter icon-views icon-instagram