In the setting of a 1950s urban building in central Milan, New Landscapes has carried out a refined renovation of a typical apartment from the era of the city’s post-war reconstruction. The project is rooted in a careful revival of the spirit of those years: a desire to stay grounded in place while also seeking the most modern expression of Italian identity, already vibrant in the immediate postwar period.
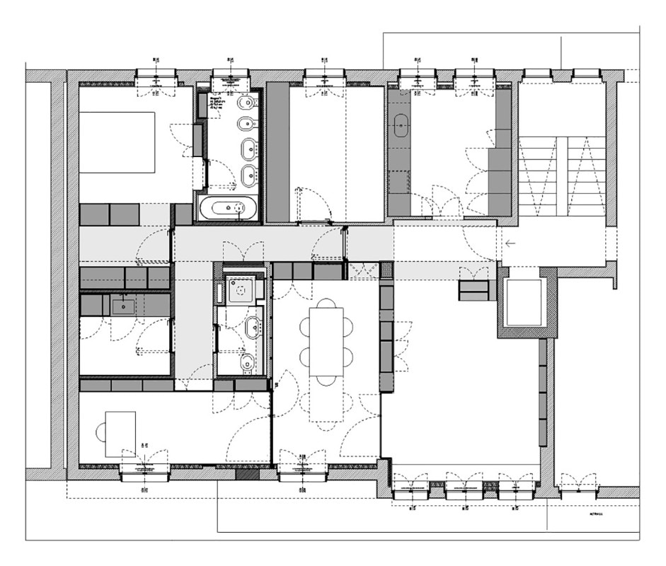
Behind the layout of an apparently conventional floor plan, a masterful sequence of spatial transitions unfolds, particularly evident in the living areas. Here, a sophisticated system of boiseries and built-in furnishings forms a continuous backdrop, first for the living room, then the dining room, and finally the study. The result is a labyrinthine composition of bookshelves and cabinetry, punctuated by custom-designed slits and niches: small alcoves to display objects, house lighting elements – transformed into luminous lanterns integrated into the woodwork – or, through the subtraction of one or more modules, to allow natural light to filter seamlessly through the apartment.
The continuity of spatial flows is emphasized by the doors separating the various rooms, each one different from the other, often enriched by important fanlight openers. Regardless of their more or less accentuated materiality, they are never really conceived as closures, but rather as points of contact and expansion of one space towards another, sophisticated interpretations of the threshold, the domestic limen.
The sleeping areas, on the opposite side of the flat, keep on the other hand a strong dimension of privacy, emphasized by the today almost anachronistic presence of the corridor, which in this case regains its dignity as the true infrastructure of the home, a guarantor of domestic intimacy, still equally participating in that play of micro-openings, functional or luminous, which can be found everywhere in daytime and public spaces.
All through this project, the unity guiding the spatial choices is legible precisely in their extreme variety, and the space itself is constantly subject to dynamism and surprise.
