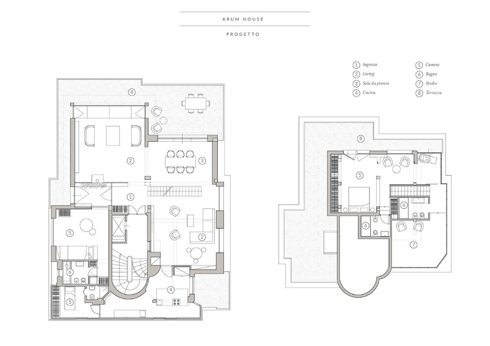
A bright apartment, overlooking Villa Ada, in a green area of Rome. Studio Strato has made the renovation of this apartment by connecting the interior with the exterior. The outcome is a more spacious living space, projected directly into the green of the city. The house is two floors, in the highest part of a building in the historic center, and before the renovation was made up of many small rooms communicating with the hallway. The renovation has eliminated the separations, to have a larger living space. You move from room to room in a fluid way, without interruptions. The entrance leads to the large area with light larch parquet, which includes a large dining room with three solid wood tables to the right and a sitting area with a large black fireplace to the left. Here a glass wall creates a balance between an intimate space and the flow of the rooms, ensuring tranquility to the bedroom of the owners’ teenage daughter.
View gallery
Insieme alla vista sul parco, il carattere principale della ristrutturazione è la grande scala che collega la camera da letto principale al piano inferiore. È una struttura leggera, con un design semplice. I due bagni sono ricchi di dettagli, come le piastrelle a scacchi a mano di Fornace Brioni (5x5 cm), che ricoprono il pavimento e le pareti del bagno padronale e il mosaico tratteggiato di quello al piano terra, quello appartiene alla camera da letto della figlia. Alla base del progetto c'è l'idea, presente in tutto l'appartamento, di arricchire la casa di dettagli con un aspetto grafico, che l'uso della masonite come copertura sia nella camera matrimoniale che nella parete più ampia della cucina. Alcuni elementi costruttivi sono lasciati grezzi con lo scopo di mostrare la traccia del lavoro svolto, come le travi e le colonne a vista, che raccontano la storia della casa, del processo che ha attraversato in fase di restauro e delle sue stratificazioni.
- Project:
- The tree house
- Architecture:
- Studio strato
- Location:
- Rome
- Completion:
- 2018
