Design firm: Gonzalez Haase Aas
Project name: 588 Aeyde Haus berlin
Location: Berlin, Germany
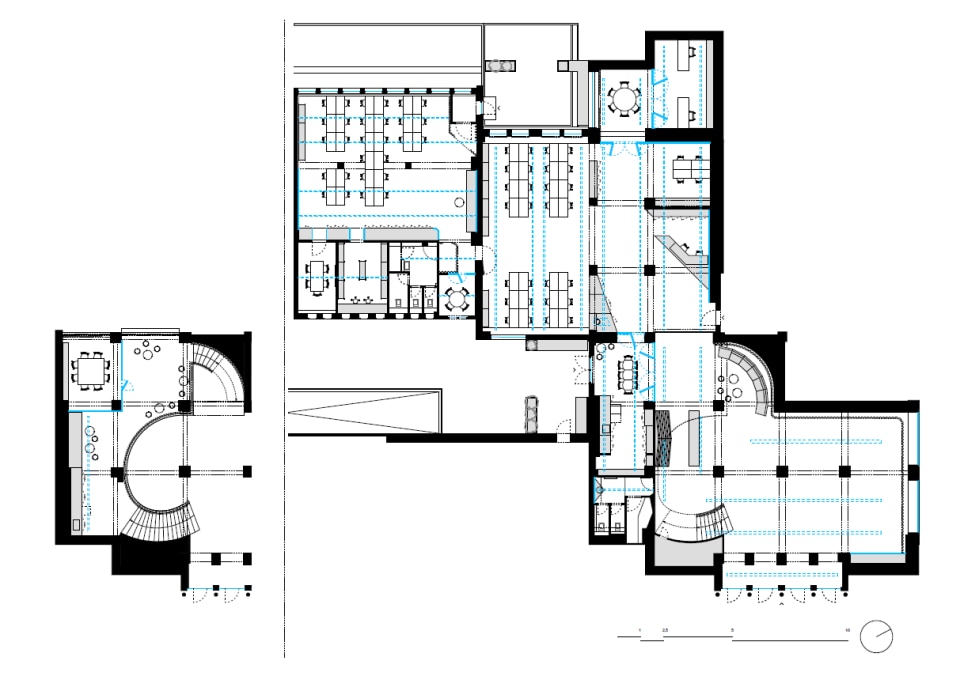
Located in the heart of East Berlin along the monumental Karl-Marx-Allee, the former Haus des Kindes building tells a story spanning ideology, architecture and urban transformation. Designed in the 1950s by Hermann Henselmann, who also designed the TV Tower, the building was conceived as a symbol of the young GDR — a children's department store that was a tangible expression of socialist ideals. Today, this example of socialist classicism is enjoying a second life thanks to an adaptive reuse project that preserves its identity. Stripped back to their original prefabricated concrete structure, the spaces now house Aeyde House: a fluid environment combining offices, a showroom, a library, and an archive. This transformation does not erase the past, but rather makes it legible. The original ceiling heights, light streaming through the spaces and essential materials create a continuous dialogue between history and the present. This is a successful example of how the post-Soviet legacy can be reinterpreted to restore value to symbolic architecture without betraying its spirit.
