In the well-known seaside town of Matanzas, Chile, the studio Stanaćev Granados created a pavilion as an annex to a holiday home, answering the clients’ children’s desire for a space to gather and socialise—while respecting the surrounding scenery, the local culture, and the tranquillity of the main house.
Built quickly and on a limited budget using local materials and construction techniques, the project merges with the landscape without becoming camouflaged. It offers a contemporary take on the “quincho”: the traditional covered outdoor space, usually set at the back of the house or in the garden, which in South American culture provides the backdrop for almost every social occasion and is specifically equipped for preparing the “asado” (the classic meat barbecue).
The project offers a contemporary reinterpretation of the ‘quincho’ — the traditional sheltered outdoor space that, in South American culture, forms the backdrop to social gatherings.
The structure occupies an 8 × 8 metre plot within the property, set apart from the main house to take advantage of its sunny orientation and wide ocean views. Without resorting to mimicry or giving up its own architectural identity, the building engages the site with quiet restraint: the single-storey box-like volume is entirely clad in darkened local pine slats that echo the tones of the surrounding woodland, and it is topped by a green roof that softens its visual impact.
While the elevations facing the main house and the neighbouring properties are deliberately closed to avoid visual and acoustic interference, the front towards the coast opens up into a broad band of sliding glass that dissolves the boundary between inside and out. In this way, domestic life is projected towards the landscape, recalling the quincho’s role as a transitional space between house and garden.
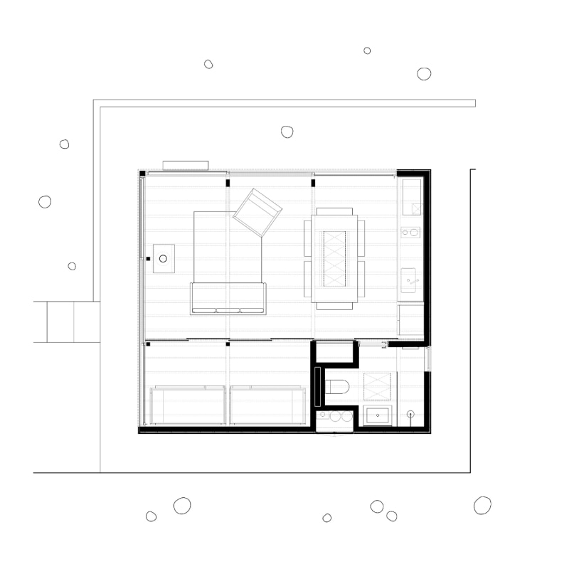
Inside, the pavilion—conceived primarily for shared activities—is almost entirely taken up by the living area and an open-plan space with an indoor barbecue. The sleeping quarters, with six bunk beds, are enclosed within a system of sliding and stackable panels that can be rearranged according to changing needs.
A palette of different shades and textures of wood gives the interior a rough yet warm and welcoming character through a play of soft contrasts. The laminated timber structure, finished in a dark semi-transparent stain that echoes the exterior cladding, interacts with neutral plywood panels on all vertical surfaces—walls, sliding partitions, doors and built-in furniture—and with solid pine used for the floors and the large custom-made pieces such as the dining benches and the bunk beds.
Within this deliberately direct and concise architectural language, a few refined touches stand out: from the generous granite-and-metal dining table to the bathroom washbasin, matched to the kitchen worktop and reflecting the shadows of the surrounding trees.
- Project:
- Pabellón Galeo
- Architectural design:
- Stanaćev Granados (Nataša Stanaćev & Manu Granados)
- Engineering:
- Stanaćev Granados
- Interior:
- Stanaćev Granados
- Lighting design:
- Stanaćev Granados
- Green roof:
- Joaquín Lobato
- Construction:
- Mauricio Barría
