In the countryside of Florida, in south-central Uruguay, in an area of forestry and livestock interest, the Urzúa Soler studio has created a functional yet attractive home to accommodate workers and their families and at the same time serve as a “buen retiro” from work, combining vernacular and technology.
It is in fact in the dualism between the typological memory of the region's rural dwellings and off-site prefabricated technology that the spirit of the project can be grasped: a work of epigraphic clarity, free of rhetoric and characterised by the pragmatism typical of country living, here transposed into a standardised production process.
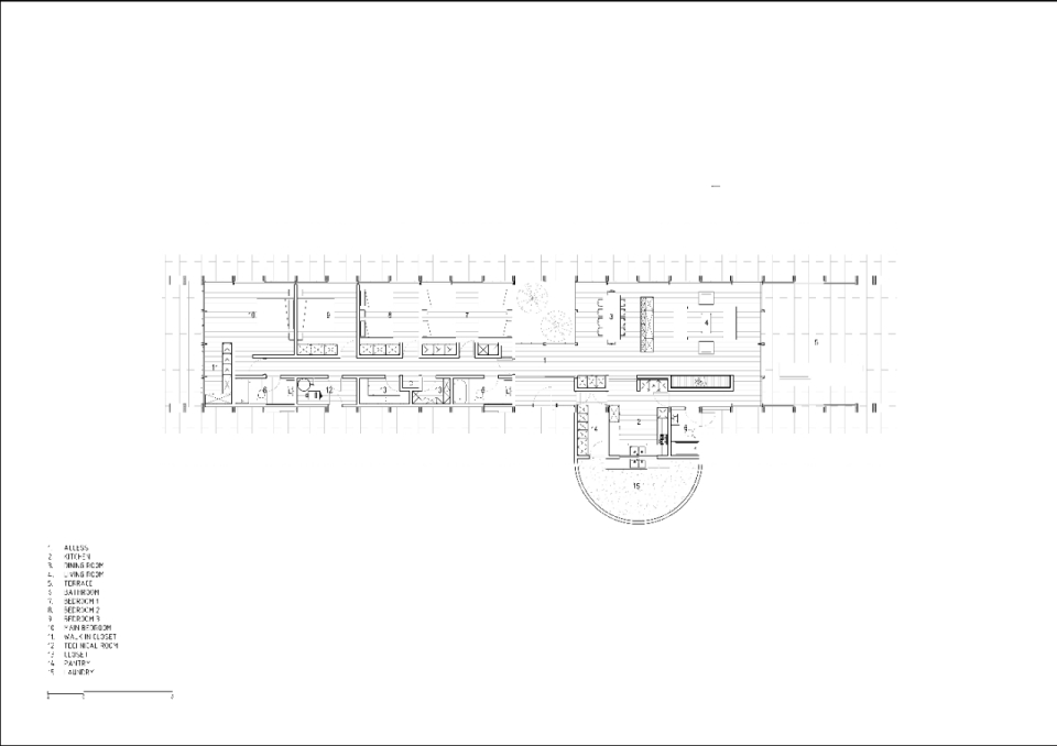
The building takes on the typological form common in the region, dictated by climatic and economic reasons, expressed through a few selected materials and a constructive straightforwardness shining through in the distinct structural hierarchy of the tectonic elements. The sturdy single-storey volume, with a marked longitudinal shape and raised on a concrete base that “isolates” it from the ground, is topped by a double-pitched roof covered in metal, which is particularly resistant to atmospheric agents, echoing the linguistic code of the rural hut. The structural system, deliberately exposed both inside and outside and openly revealing the tectonic hierarchies, is the figurative core of the project: the structure, built entirely in Chile, due to the absence of structural timber in the area and reassembled on-site in a week, consists of a repeated modular pattern of pillars and beams, reinforced at the ends by diagonals supporting the roof.
The structural rhythm also determines the sequence of domestic spaces: from the interconnected common areas irradiated by light filtering through the large windows, where the circular annexed volume housing the kitchen and facilities disrupts the serene composure of the rectilinear layout, to the private and compact sleeping area, crossed by a rigorous axial corridor.
Inside, light natural wood finishes on the walls and cladding contrast with the dark tones of the living room's fitted wall unit, enhancing the warm and cosy atmosphere of the spaces dotted with sober but comfortable furnishings.
An effective intervention which, through the extreme “synthesis” of tectonic and formal elements, turns simplicity into a design opportunity, following in the footsteps of contemporary design thinking that combines memory and innovation, bucolic romanticism and technology.
- Project:
- Caballete House
- Architectural design:
- Urzúa Soler Arquitectos
- Project leaders:
- Nicolás Urzúa S. + Mauricio Urzúa S. + Mauricio Urzúa U.
- Structural engineering:
- Urzúa Soler Construction
- Contractor:
- Urzúa Soler Construction
- Client:
- Grupo Forestal
