If kitchens in historic English terraced houses were mostly strictly functional and utilitarian spaces, Droo Architecture's renovation and extension of a Victorian house in south-east London turns this prosaic space into the epicentre of domestic life and a stage for gastronomic adventures.
The focus of the intervention was to maximise the kitchen space, intended as a place for relaxation and conviviality but also as a working setting for the filming of YouTube videos of the client, a well-known chef.
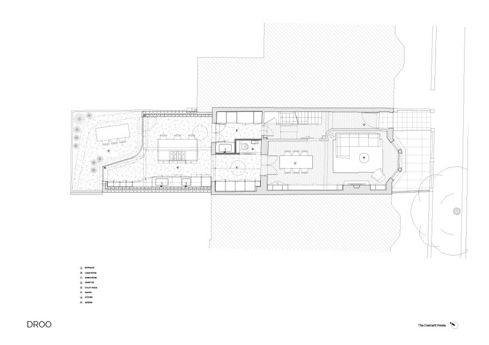
Embarking in an operation of thourough control over the reduced proportions of the space, the studio created an L-shaped extension at the back of the house expanding the kitchen into the garden, proposing an airy and bright space, intended to be as warm and natural as the food proposed by the chef.
A curved glazing softens the impact of the new volume in the context, blurring the boundaries between the house and the open space and introjecting the natural light that also filters through the playful circular skylights in the roof.
A sequence of open shelving and oak plywood closets brings it all together, on the inside, generating a continuous wall which starts as a theatrical backdrop for video footage and then extends into the spaces of the old kitchen, now converted into a dining room.
Every detail of the woodwork has been carefully custom-tailored in the name of functional yet refined design, such as the system of push-open doors and drawers whose exposed edges create a weave of ribbing where handles are integrated.
White quartz ceilings, pink tiles in the walls, polished concrete in the floors and soft curtains enveloping the space enhance the radiant and inviting atmosphere of the room, suggesting the pleasure of being a guest for dinner.
- Project team:
- Michel da Costa Gonçalves, Amrita Mahindroo, Harikleia Karamali, Clara Saade
- Structures & MEP:
- Aksess ltd
- Party walls:
- Cavendish surveying
- Contractor:
- Tetra Building Ltd
