In Schaerbeek, one of the municipalities in the Brussels Capital Region, a warehouse has been demolished to make way for a house whose materials come in part from the very pre-existing structure, preserved and reused: bricks, metal frames, and flooring have been valorized, giving shape to a contemporary, clean and fluid architecture.
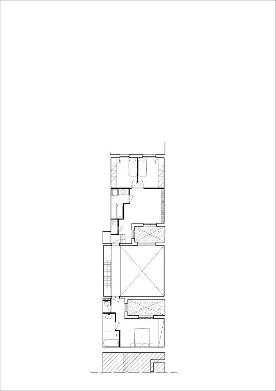
The new building, designed by Mamout architectes, thus extends over a length of more than 22 metres, with interior spaces rhythmically marked by a series of partitions.
Two patios emerge in this harmonious subdivision, hidden elements of the project but important for connecting the various rooms and offering precious open-air spaces. The volumes, separated by these green corners, are three in total: the first is distributed on three levels while the central one is characterised by the presence of a double-height space in which passages and walkways stitch the architecture together, leading to the adjacent volumes. Finally, the third building is distributed on two levels and is mainly dedicated to the sleeping area. The interiors feature Catalan vaulted ceilings and reveal well-defined, clear, sometimes curvilinear geometric features.
Particular attention has been paid to the choice of materials, some of which belong to the previous building: the terracotta hue of the bricks left exposed interfaces with neutral tones, with the light blues and blues of the furnishings, the plasterwork and the sloping ceiling. The large windows overlooking the patios are also important, helping to maintain an idea of visual continuity between the environments.
- Structure :
- JZH & Partners
- Energy :
- Earth&Bee
- Contractor :
- RB Entreprises
