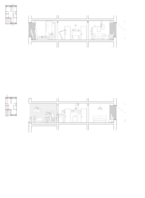
The residential building Résidence La Quadrata, recently completed by Sophie Delhay Architecte in Dijon, takes the room, rather than the dwelling, as its basic unit. Each room is set on the same square module, with a total surface of 13.6 square meters. A living room area corresponds to two modules, bedrooms and loggias to one module, kitchens and bathrooms to half a module.
As Delhay explains, Résidence La Quadrata is comprised of “240 rooms, 43 of which are open air”. An important conceptual change is being operated here, as the focus of attention is shifted from the specificities of each housing solution available within the complex (from the single family house to different sizes of flats), to the consistency of a module shared by all, and for all equipped and refined according to the same standards.
Windows are approximately the same size on all elevations; passages between rooms are oversized; sliding panels are preferred over conventional doors; electrical outlets are evenly spread over all the rooms. These and other solutions emphasize the universal character of these modules, whose function will be defined by their final users.
Façades are always three-dimensional and “inhabited”. Delhay highlights how storage areas framing the windows have two functions: on the one side, they allow to leave the interiors unobstructed by too many pieces of furniture; on the other side, they dissuade from covering glazed surfaces with objects of various kinds. This is an interesting strategy to suggest dwellers a virtuous use of their building, which would respect one of its main qualities, to their full advantage.
- Project:
- Résidence La Quadrata
- Program:
- residential building
- Location:
- Dijon, France
- Architect:
- Sophie Delhay Architecte
- Completion:
- 2019
