The buildings of Dominique Coulon & Associés stand out for their unique composition between colour and architectural form. Schools, cultural centers and public buildings are the specialties of the French studio, which in Vaulx-en-Velin, on the outskirts of Lyon, completed the School group René Beauverie, combining educational functions with community spaces for the neighborhood.
The project has a unitary appearance, featuring elementary shapes, minimal style and a palette of shades ranging from white to ultramarine blue. The white walls reflect the shades of blue, creating unexpected variations that change with the position of the sun and giving the impression of an architecture that moves through time. While outside, the sky tones have been used, the classrooms and corridors have been painted a bright yellow that illuminates and brightens the students' everyday life.
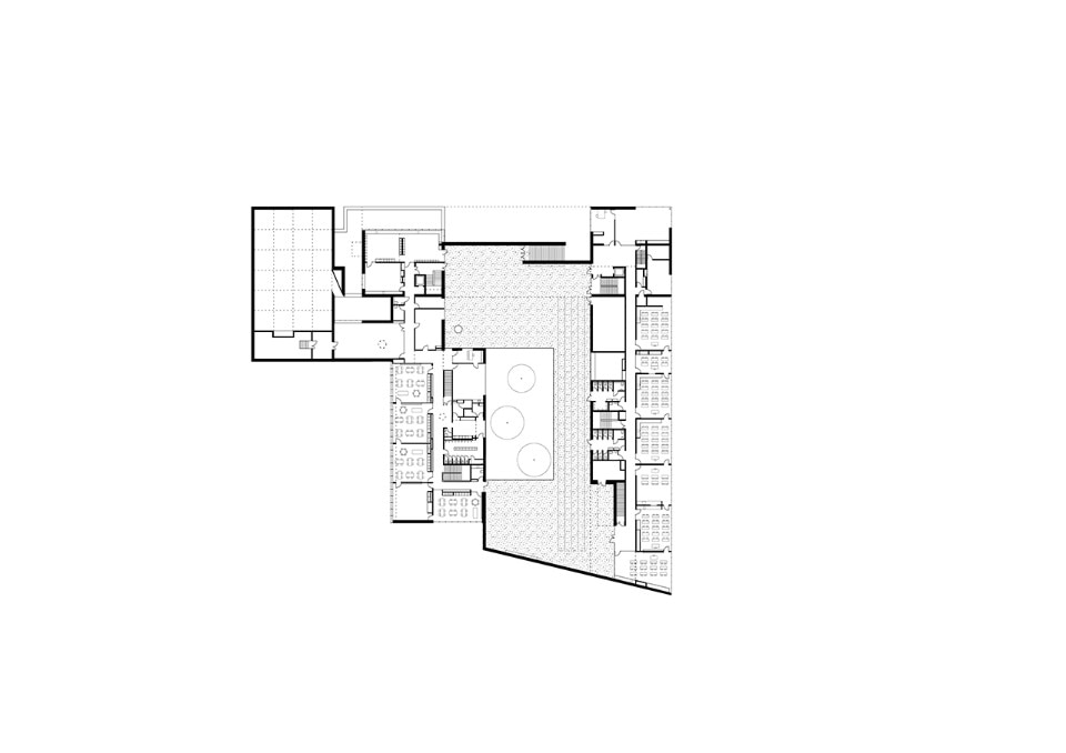
The complex was conceived as a block that is excavated to bring light into it. In this way, the unity of the architectural intervention is not lost and fluid, interconnected and small-scale spaces are generated.
On the ground floor of the complex designed by Dominique Coulon & Associés there are a kindergarten, a nursery school and a sports hall. The elementary school classrooms are located in a 40-metre-long bridge section, that can be reached via a large staircase leading to a courtyard on the upper floor.
- Project:
- School group René Beauverie
- Location:
- Vaulx-en-Velin, France
- Architect:
- Dominique Coulon & Associés – Dominique Coulon, Steve Letho Duclos, Jean Scherer
- Design team:
- Sarah Brebbia, Javier Gigosos, Lukas Unbekandt, Yannick Signani, Ali Ozku, Benjamin Rocchi, Margot Machin, Diego Bastos-Romero, Santiago Cañete
- Structural engineering:
- Batiserf Ingénierie
- Installations:
- Solares Bauen, BET G.JOST
- Landscape:
- Bruno Kubler
- Acoustics:
- Euro Sound Project
- Area:
- 6,168 sqm
- Completion:
- 2020
