The multigenerational home is an issue that brings together design, economics and family ideals. In many areas, such the United States, dwellings where more than one generation coexistence under one roof are not unusual (research by the Pew Research Centre in 2016 shows 20% of the US population lives in such houses), but in Europe this is a niche model – one that is gaining in popularity.
In Europe, an ageing population with increasing healthcare needs and the demands on younger generations to be ever more flexible and mobile at work, are arguably seeing family structures weakening and a rise in individualism.
But in some instances architecture can promote alternative models of coexistence of young and old for mutualism, where childcare, day-to-day tasks and healthcare needs are shared.
In Amsterdam, BETA tackles this issue with the design of its five-storey Three Generations House that can accommodate two separate households: a young couple and their children who already resided in the city, and their elderly parents who wanted to return closer to urban services.
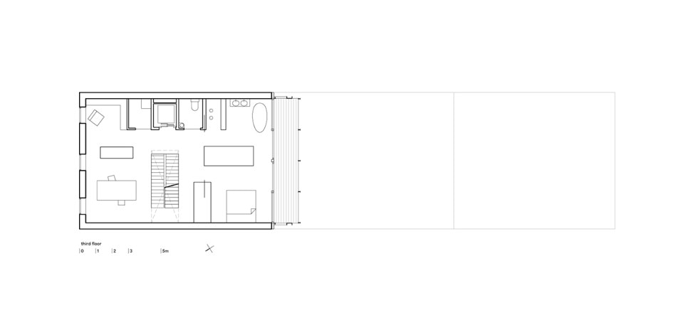
The central circulation area is the sculptural element that defines the spaces and becomes the heart of the project. Alongside the stairs, it also includes an elevator to allow everyone access to all levels of the house.
The stairs divide the house into two parts: rooms facing north towards the road are segmented and clearly defined, while those facing south toward the garden are open and flexible.
This division of spaces is also visible in the composition of the two facades: the front with regular square windows set into the black frontage, the back completely open to the garden through full-height glazing and terraces.
The house is composed of several mini apartments that can be configured in different ways over time, following the evolution of the multigeneration family.
- Project:
- Three generation house
- Location:
- Amsterdam
- Architect:
- BETA – office for architecture & the city
- Climate advisor:
- Huibert Spoorenberg
- Engineer:
- Huibers Constructieadvies
- Contractor:
- ATB Leerbroek
- Woodworker:
- Sibe Visser
- Team:
- Auguste van Oppen, Evert Klinkenberg
- Completion:
- 2018
