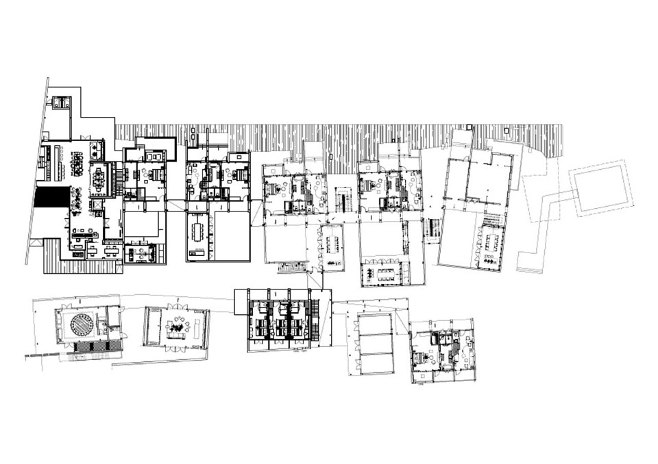
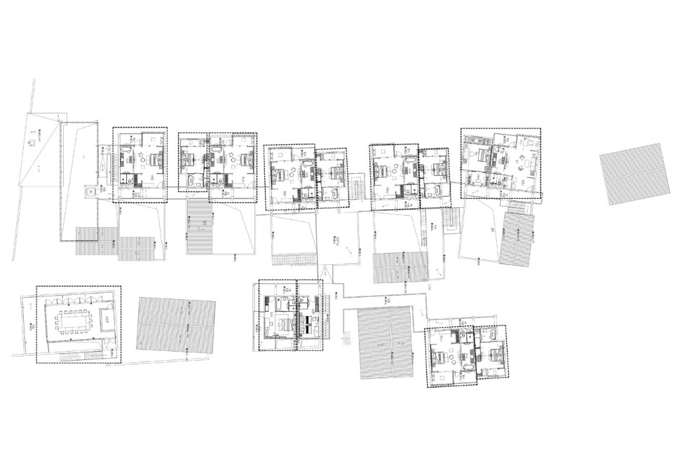
In an old village in the picturesque area of Jiangnan, southern China, studio H DESIGN was commissioned the renovation of a cultural museum, enhancing the local tradition of brick klin production. The project is located in the old canal town of Zhu Jiadian, west of Jin Xi, where there can be still found more than ten ancient brick klins from the Ming and Quing dynasty. The commission consists in the museum renovation, the addition of a public hall on the waterfront and ten small residential buildings that host 20 guestrooms.
View gallery
The Brick kiln cultural museum was built along the waterfront. The ground floor is mainly planned as light dining area, while the first floor contains brick-cultural exhibition area, a large meeting room and other functional spaces where people can relax. The original architectural style has been preserved and re-organized in a multifunctional space. The cultural center serves as a hub for local makers to meet and organize training classes, boosting the local rural development. The additional buildings feature Jiangnan elements, brick solutions and the classical Chinese garden displayed in a contemporary way. Among the materials used we can find bamboo, steel frames, local bricks ( ancient gold bricks and red bricks) and wooden structures.
- Project:
- Brick Kiln Folk Inn & Museum
- Program:
- museum and guesthouse
- Location:
- Kunshan City of Suzhou, China
- Interior design:
- H DESIGN
- Team:
- Kevin Hu (head designer), Jason Jiang,Wendell Wu,Vivi Zhang (design team)
- Area:
- 1,520 sqm (museum), 2,940 sqm (Folk Inn)
- Landscape:
- China Urban Construction Design&Research Institute. Ltd., View Unlimited-Landscape Architecture studio, CUCD
- Architecture:
- China Architecture Design Group, Cui Kai Design Team
- Lightning design:
- Beijing Sign Lightning Industry Group
- Completion:
- 2017
